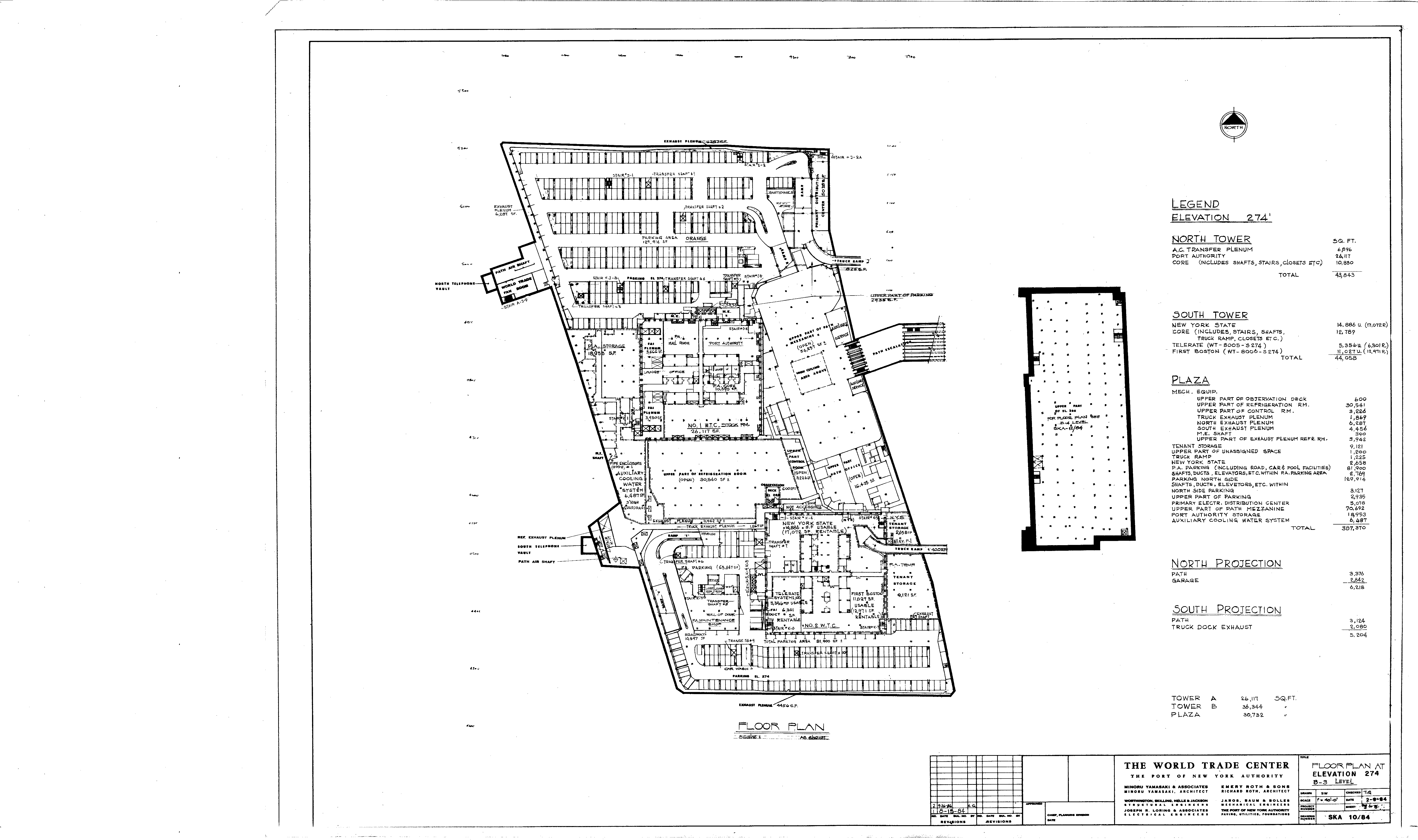
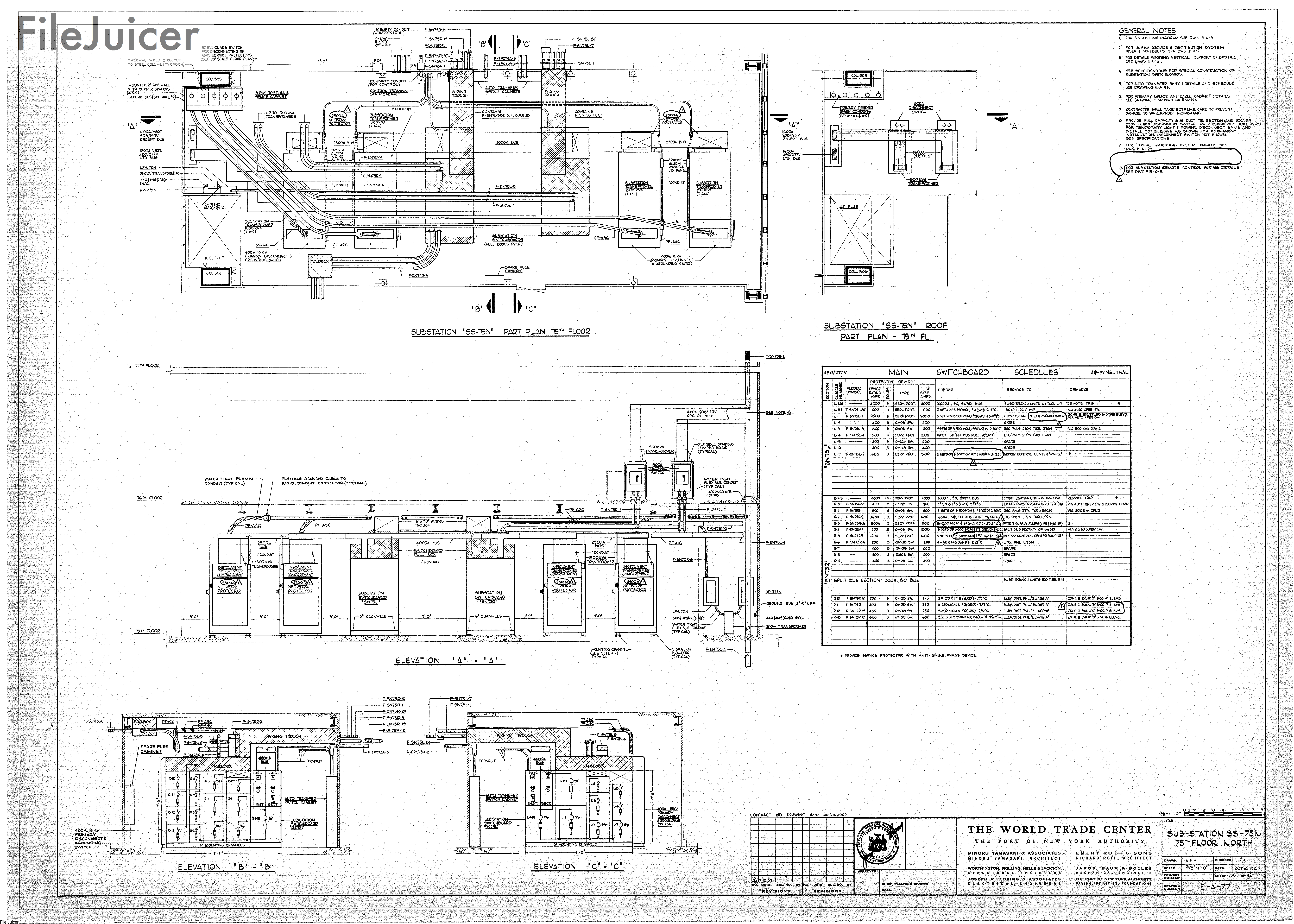
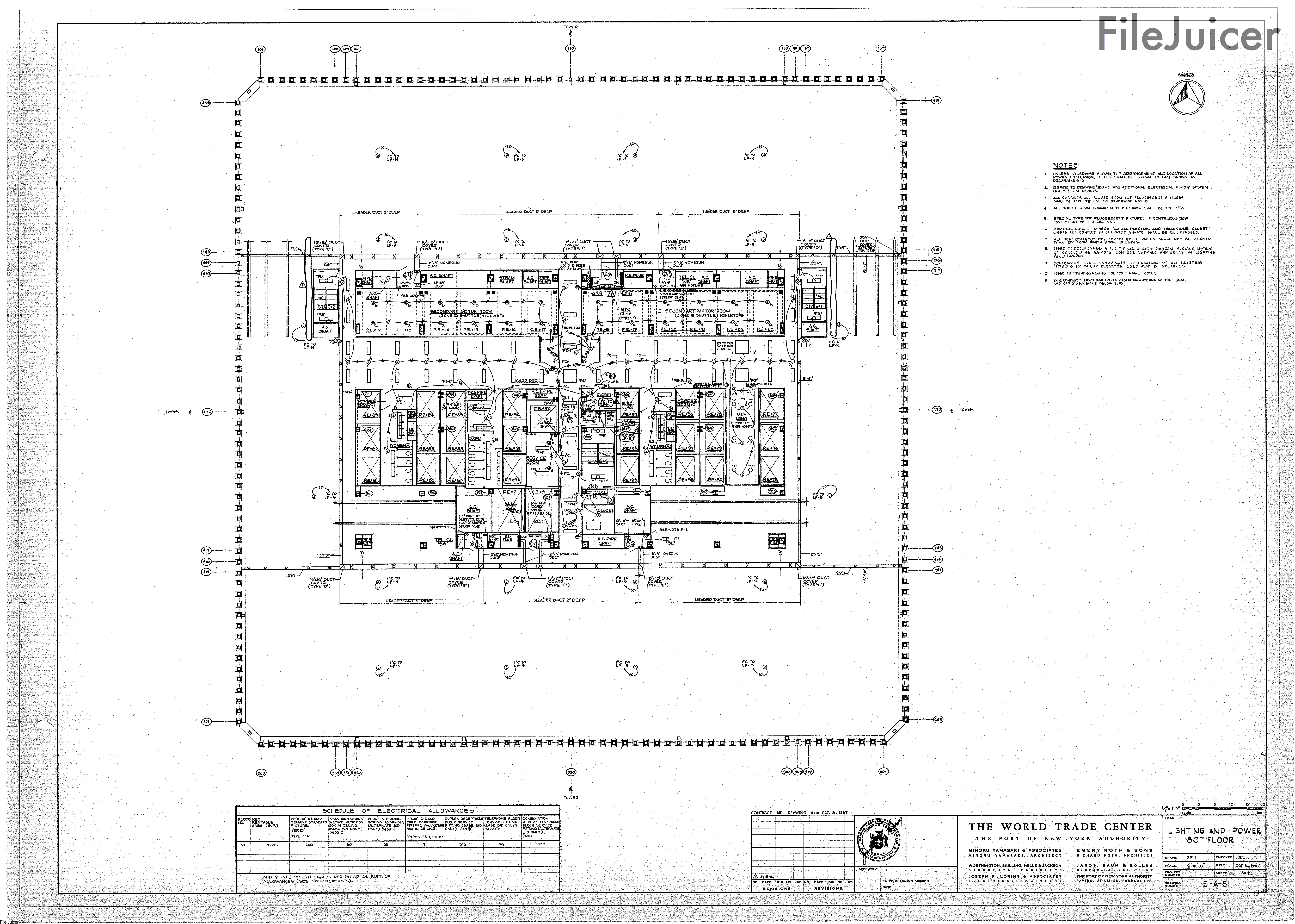
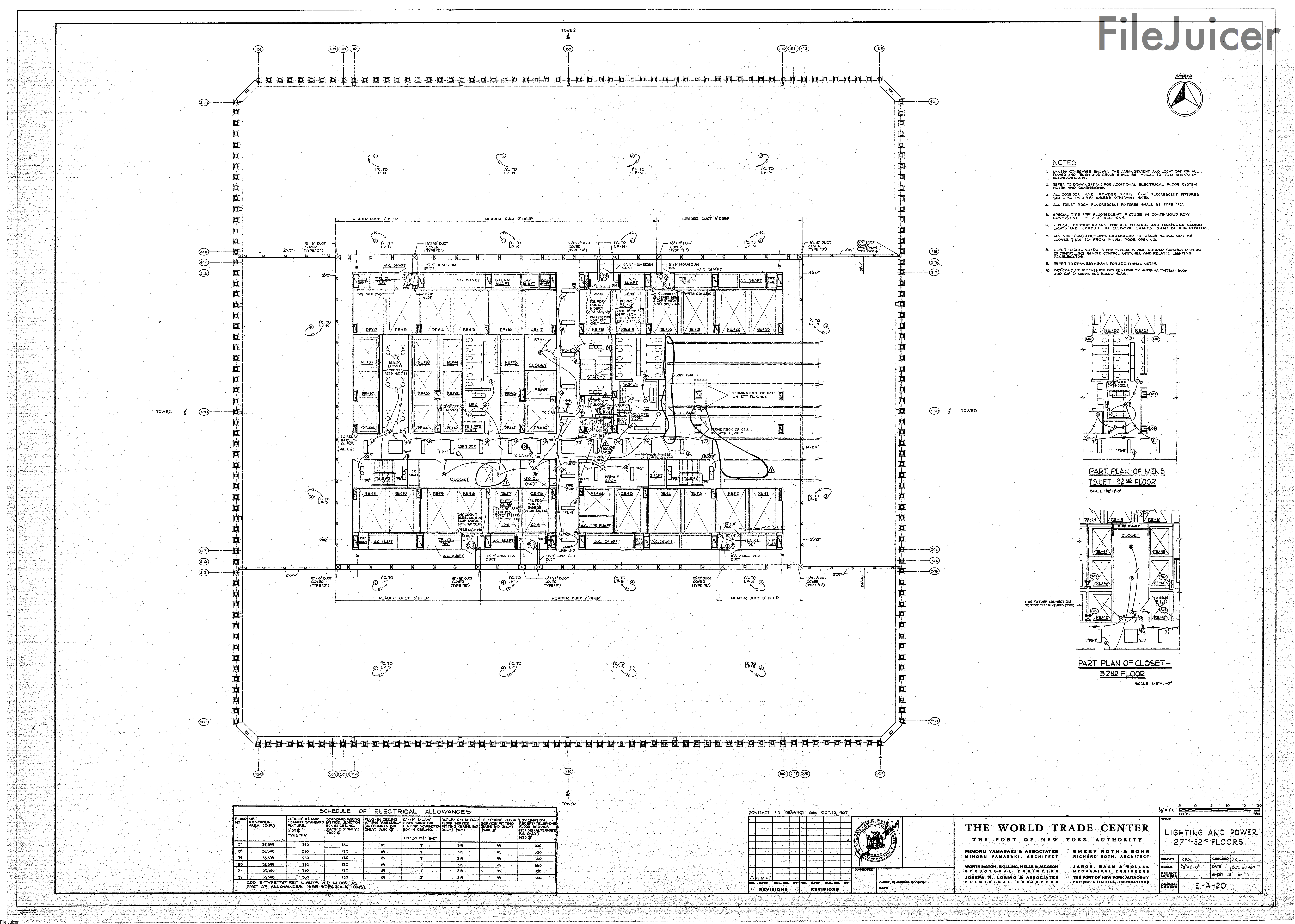
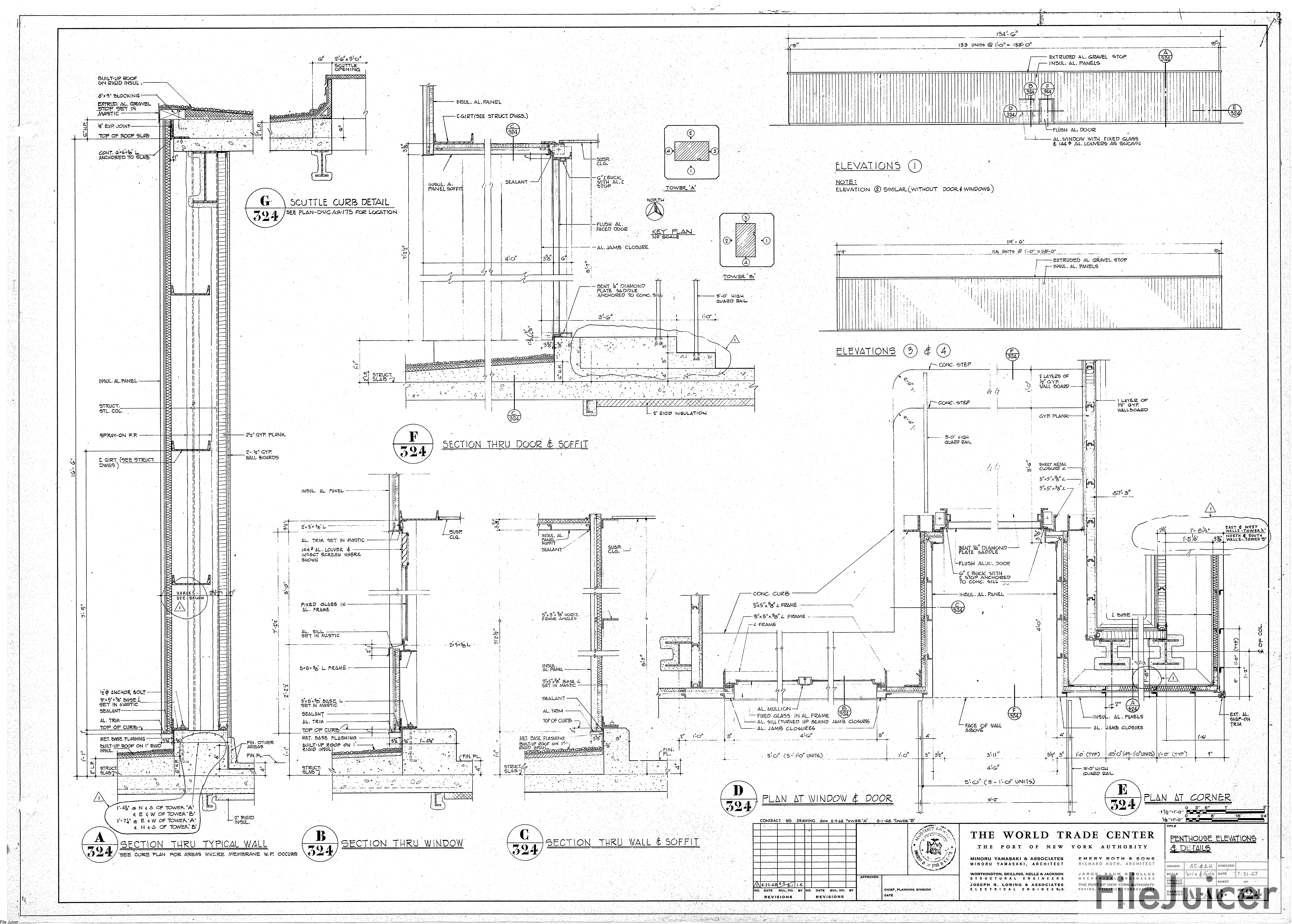
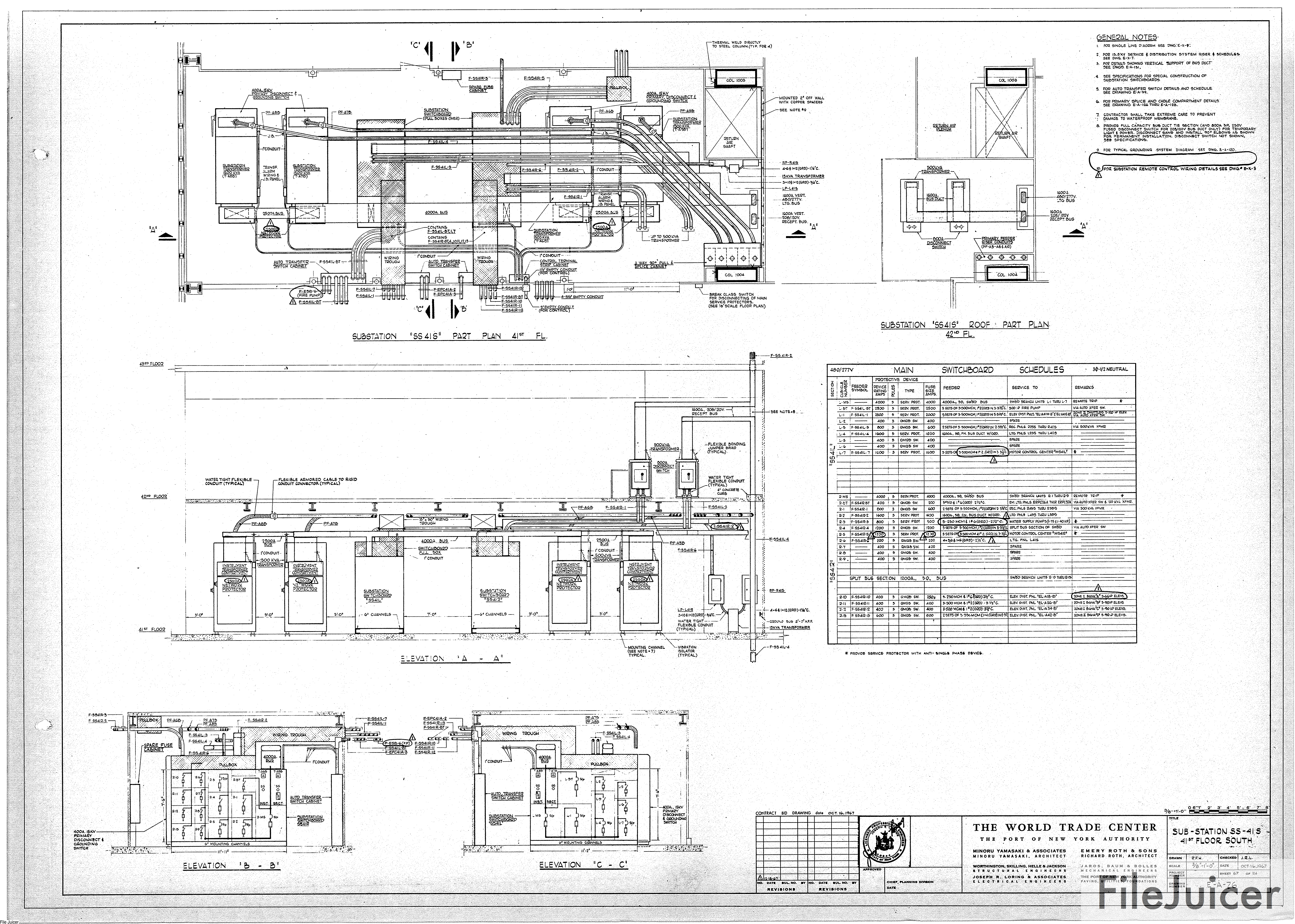
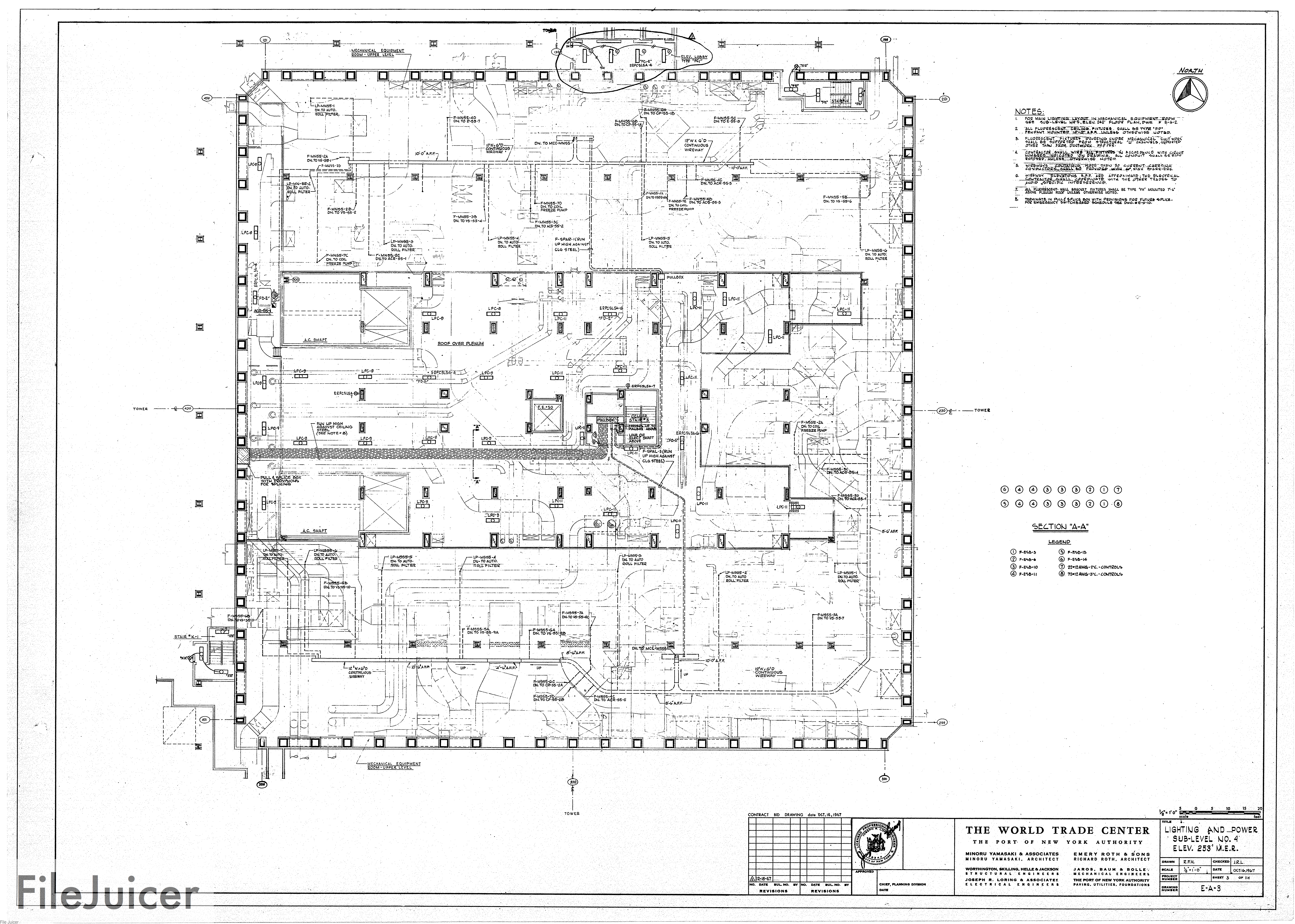
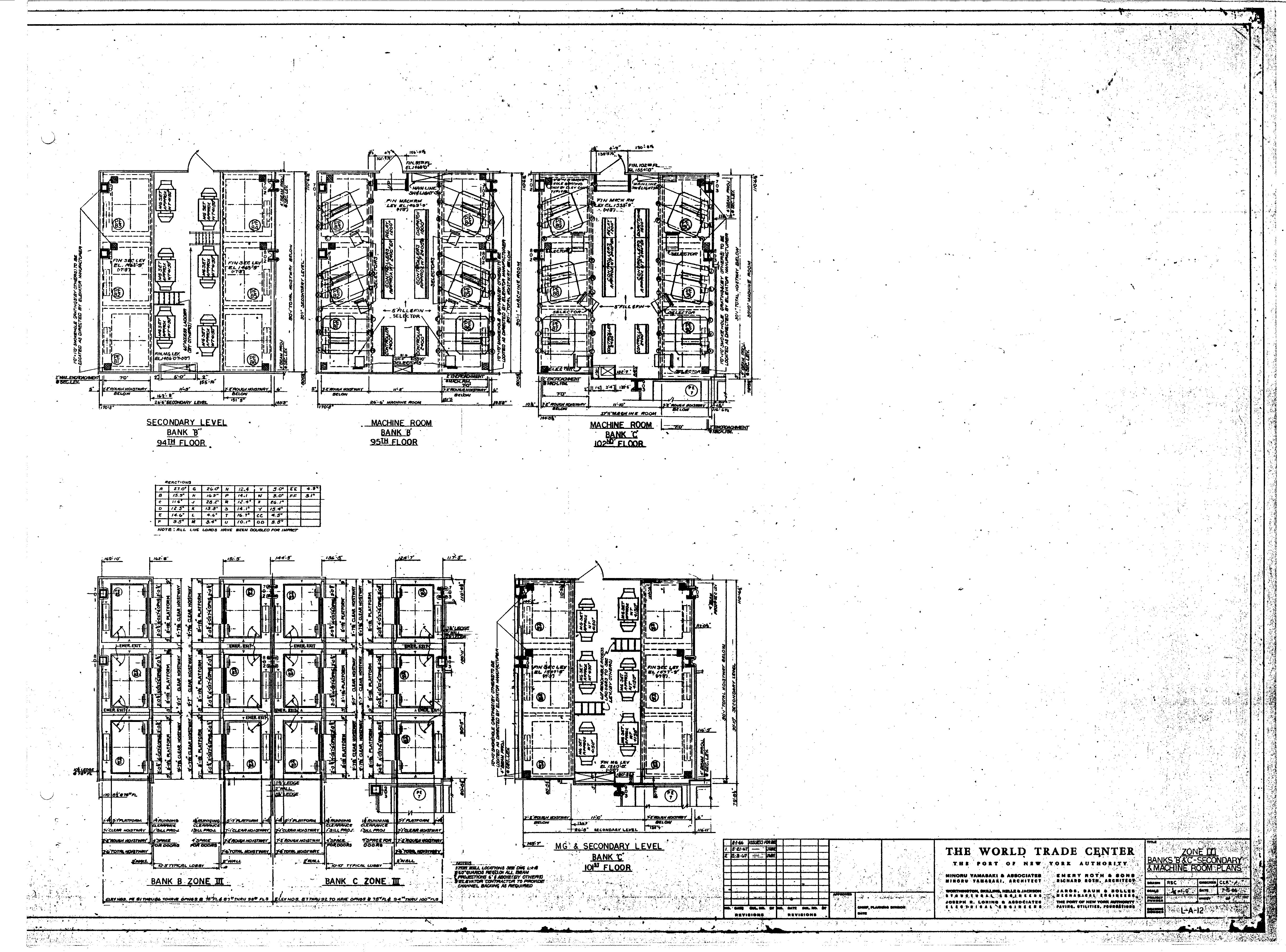
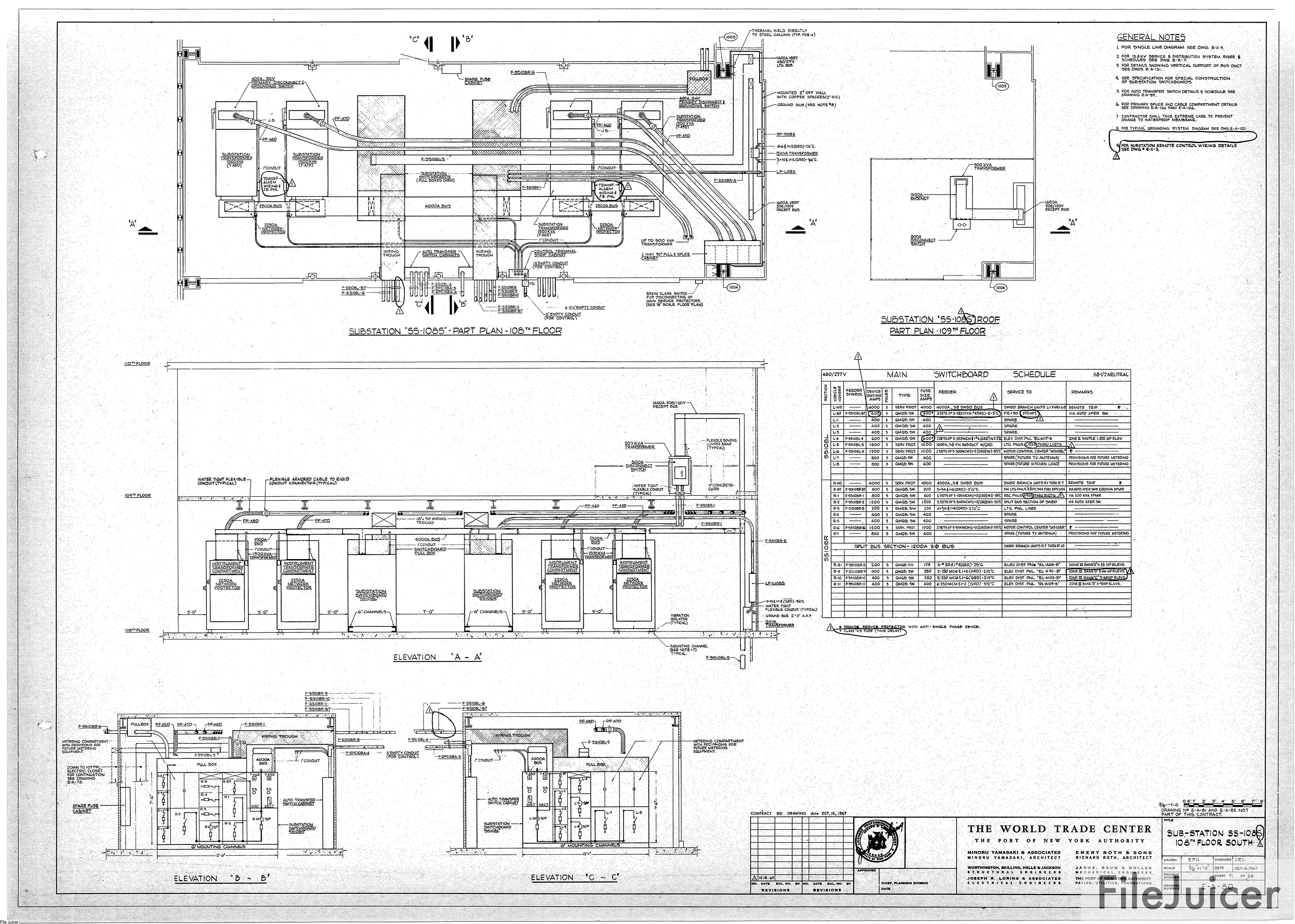
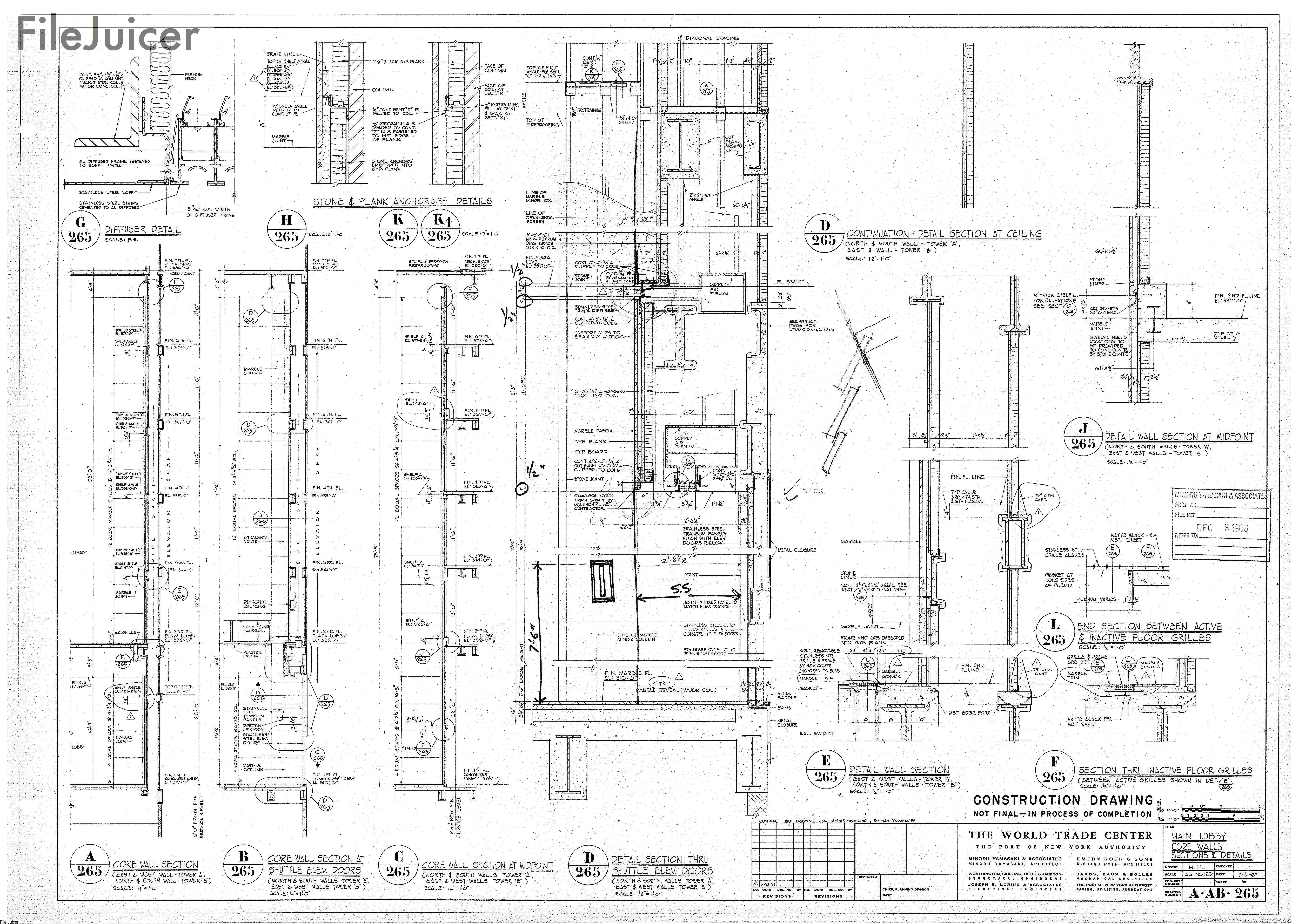
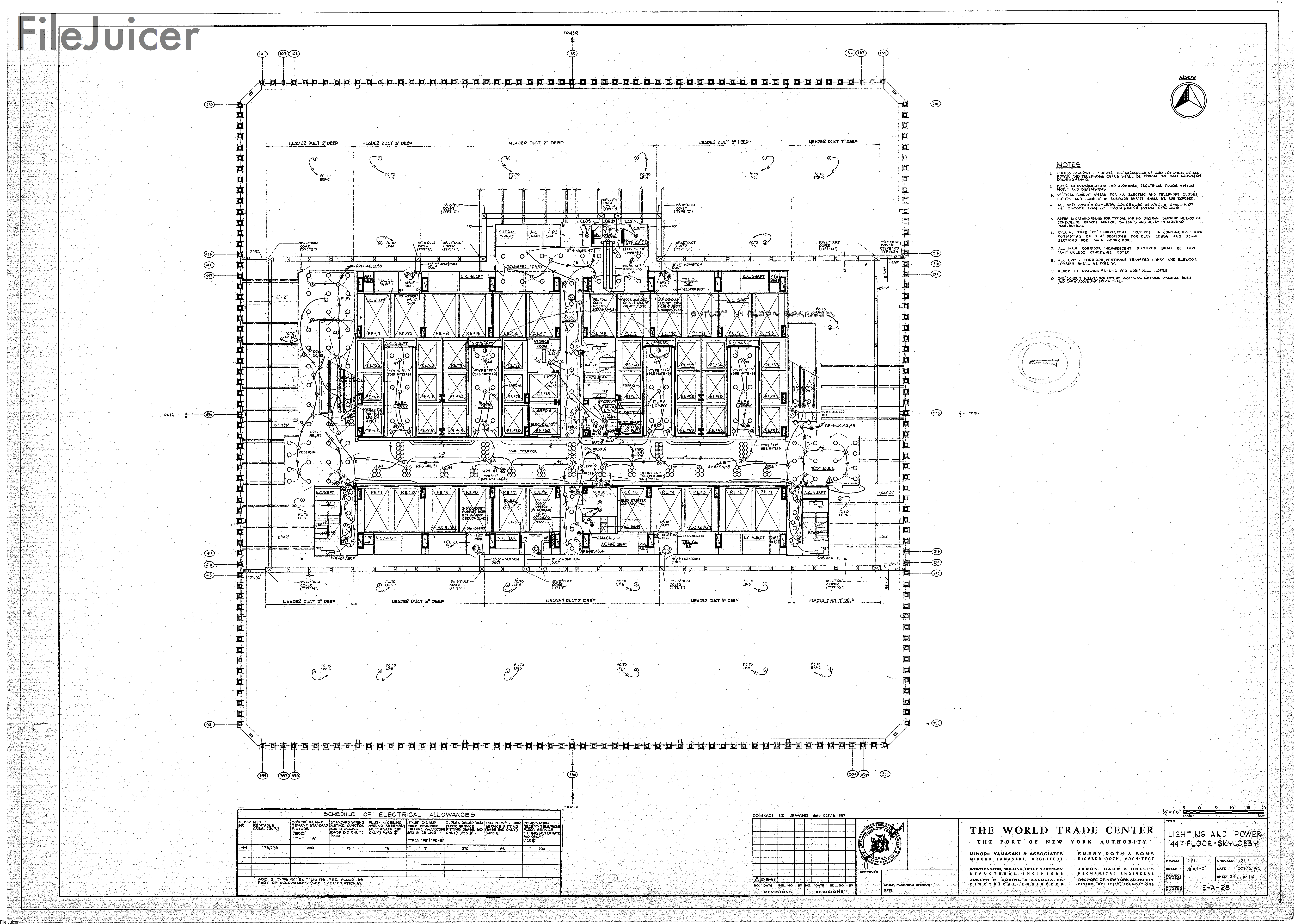
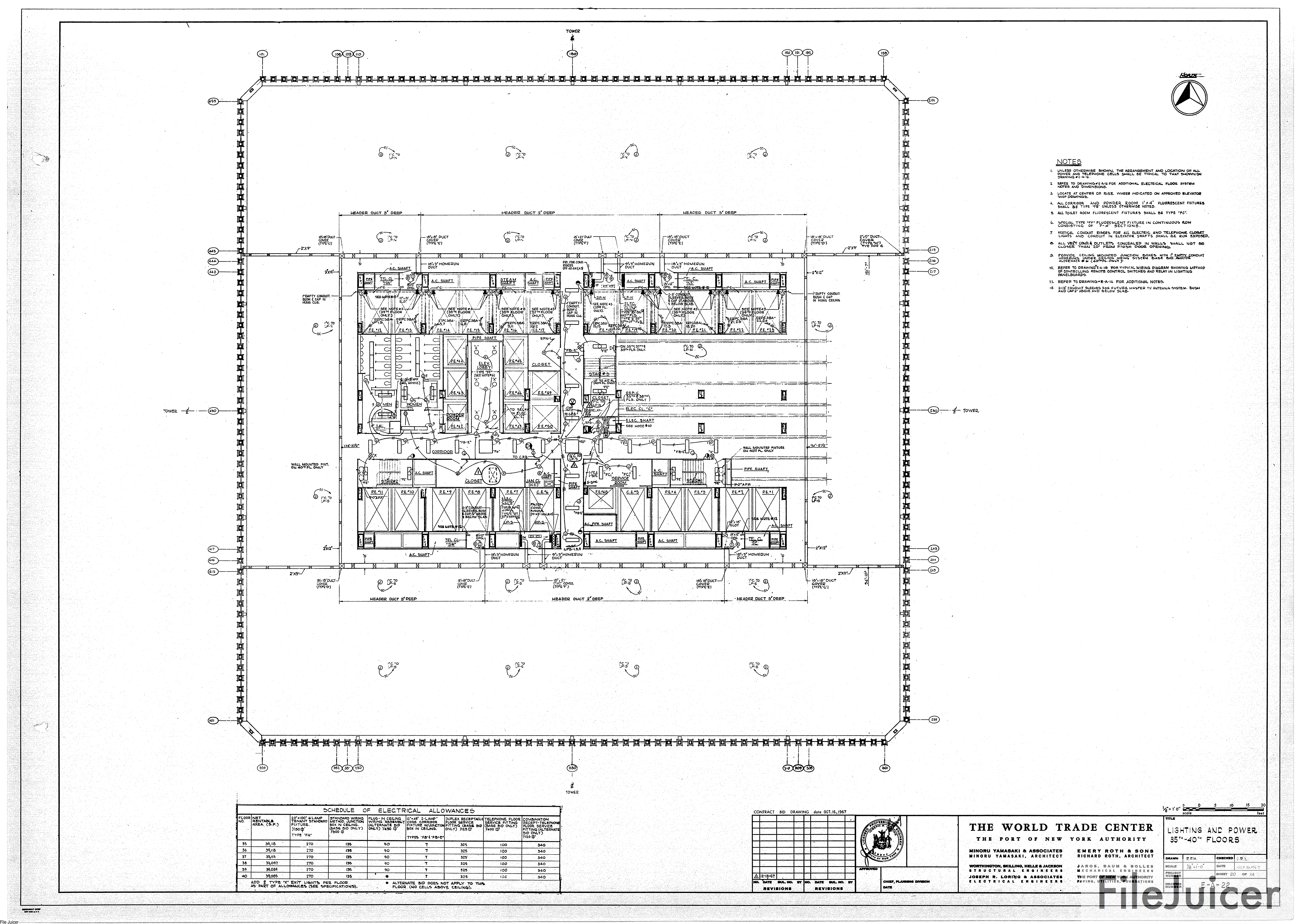
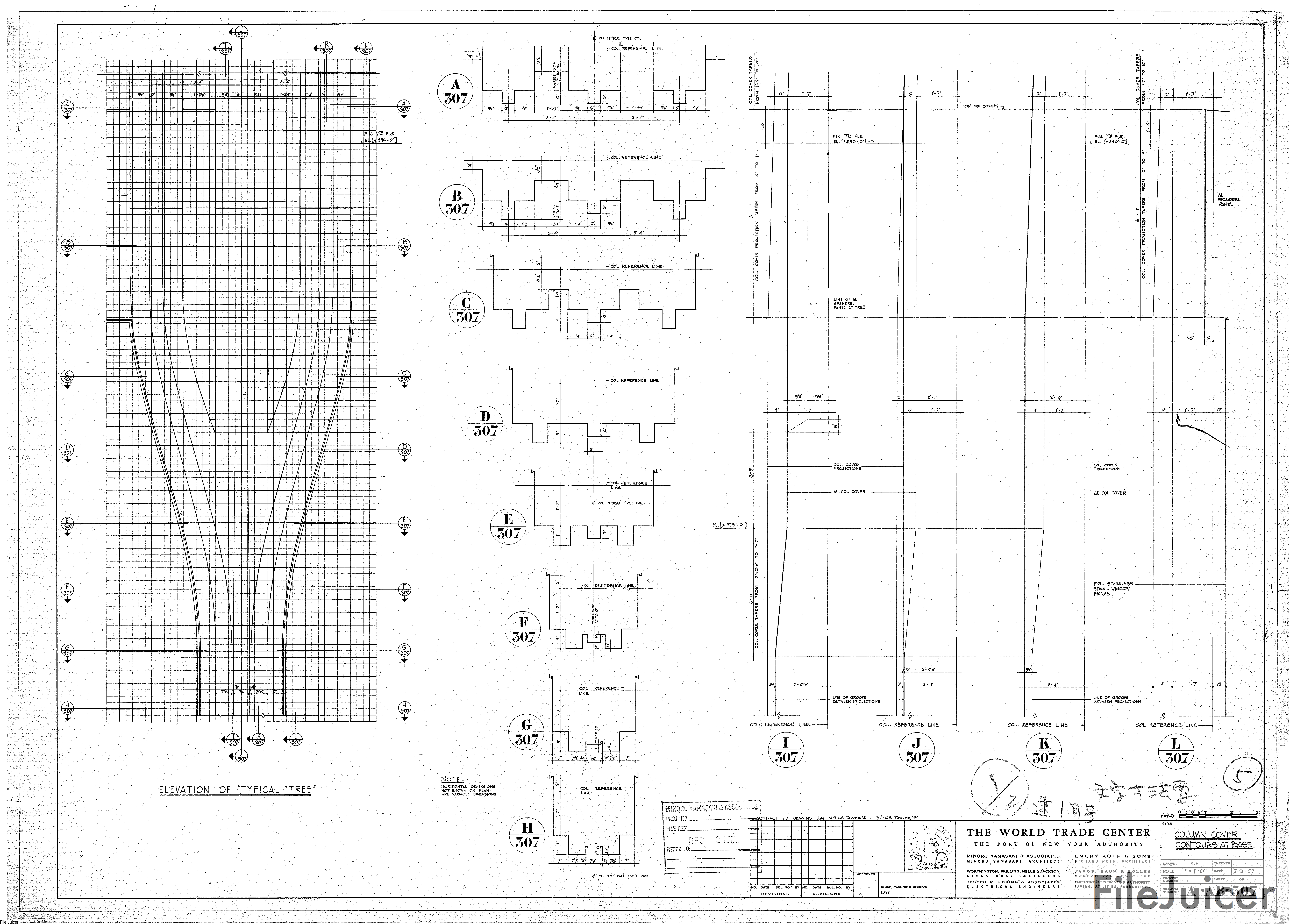
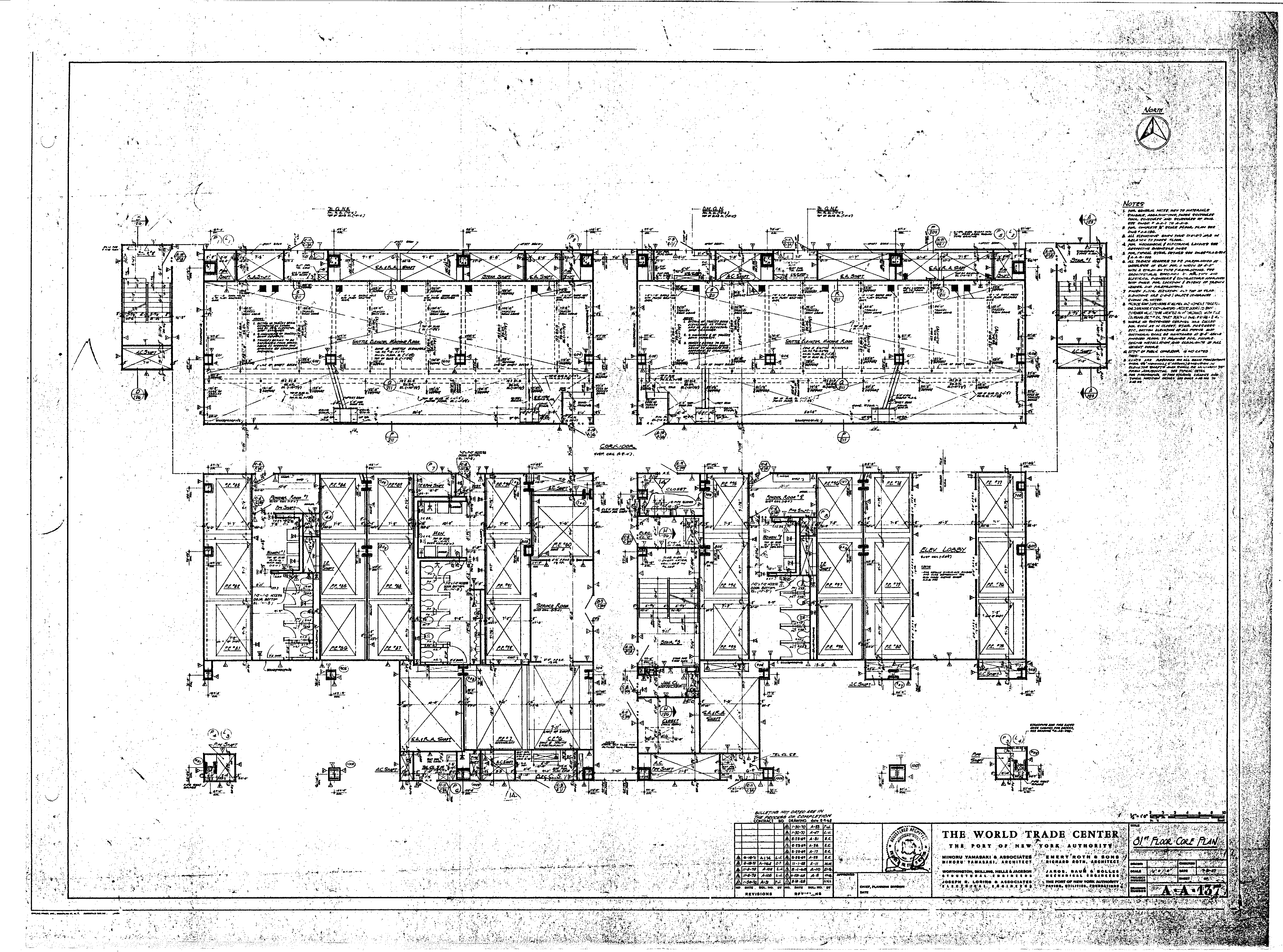
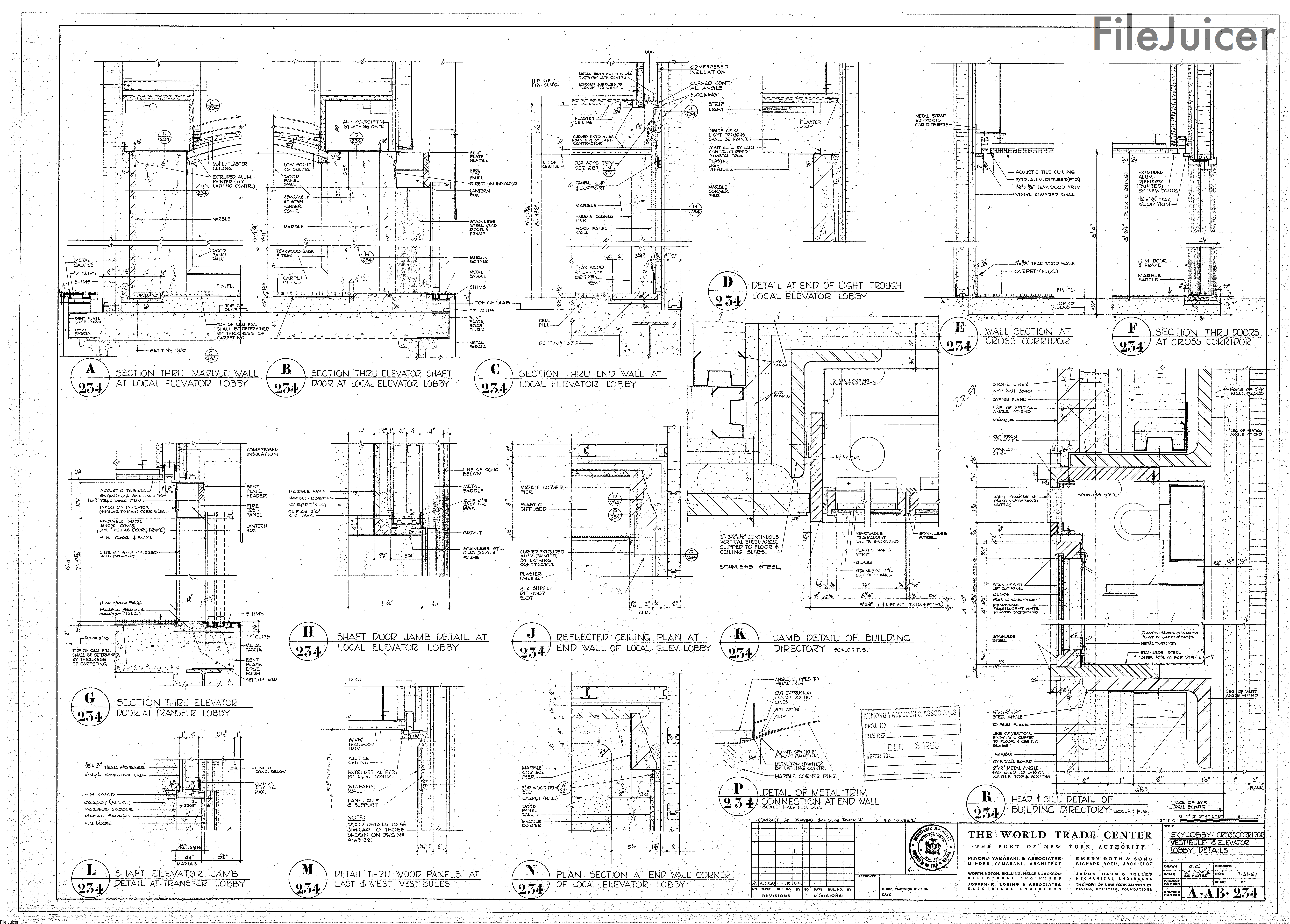
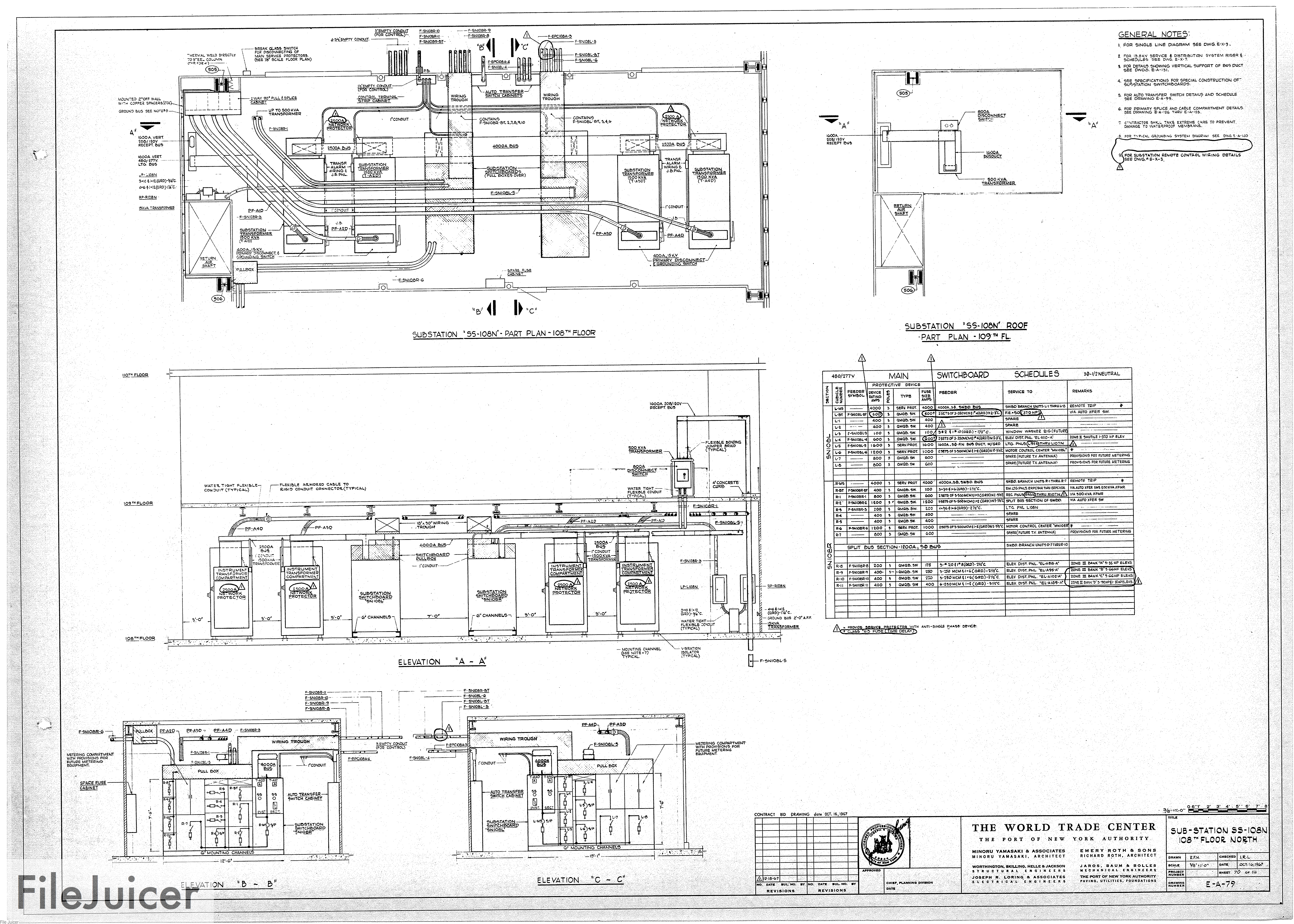
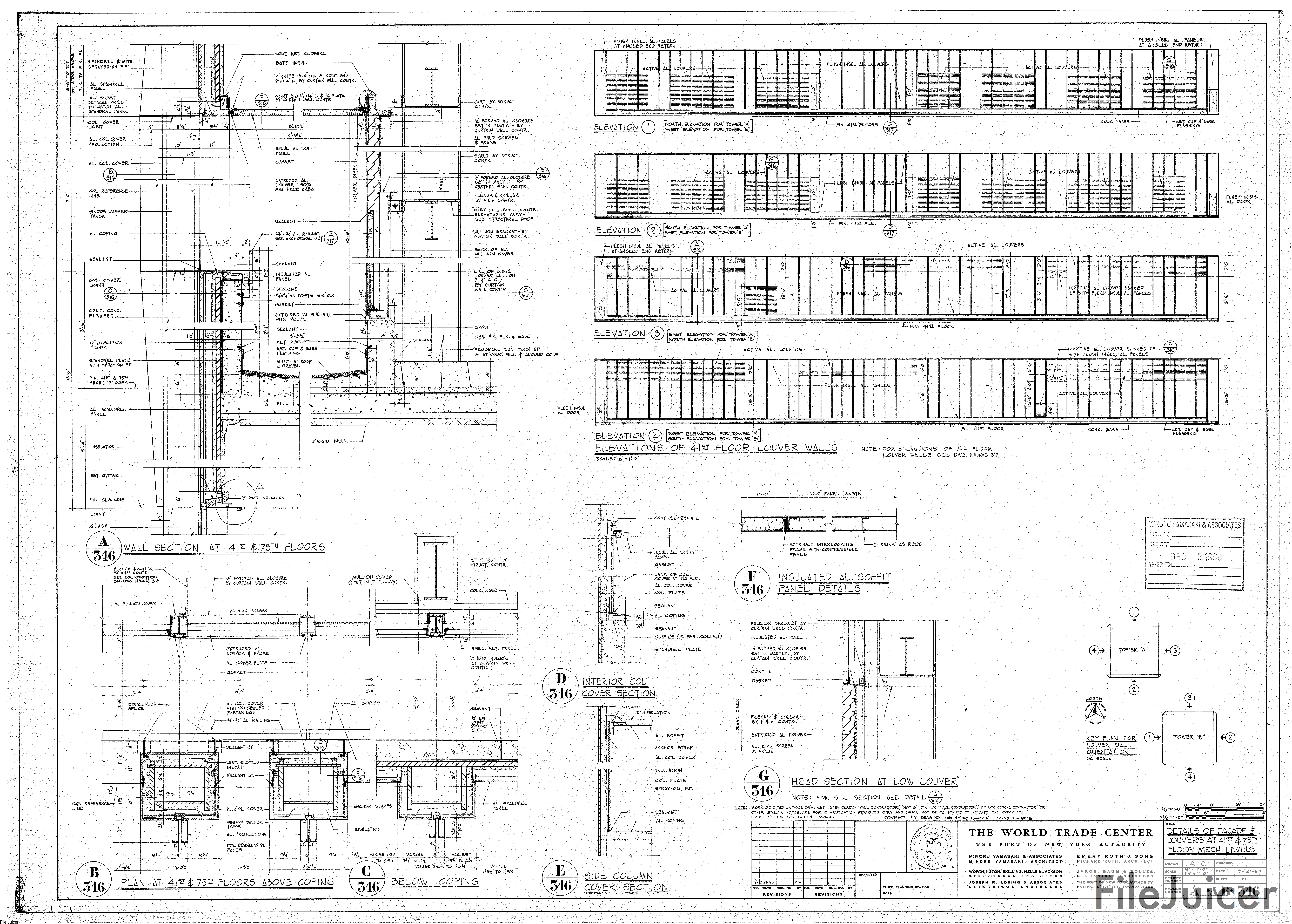
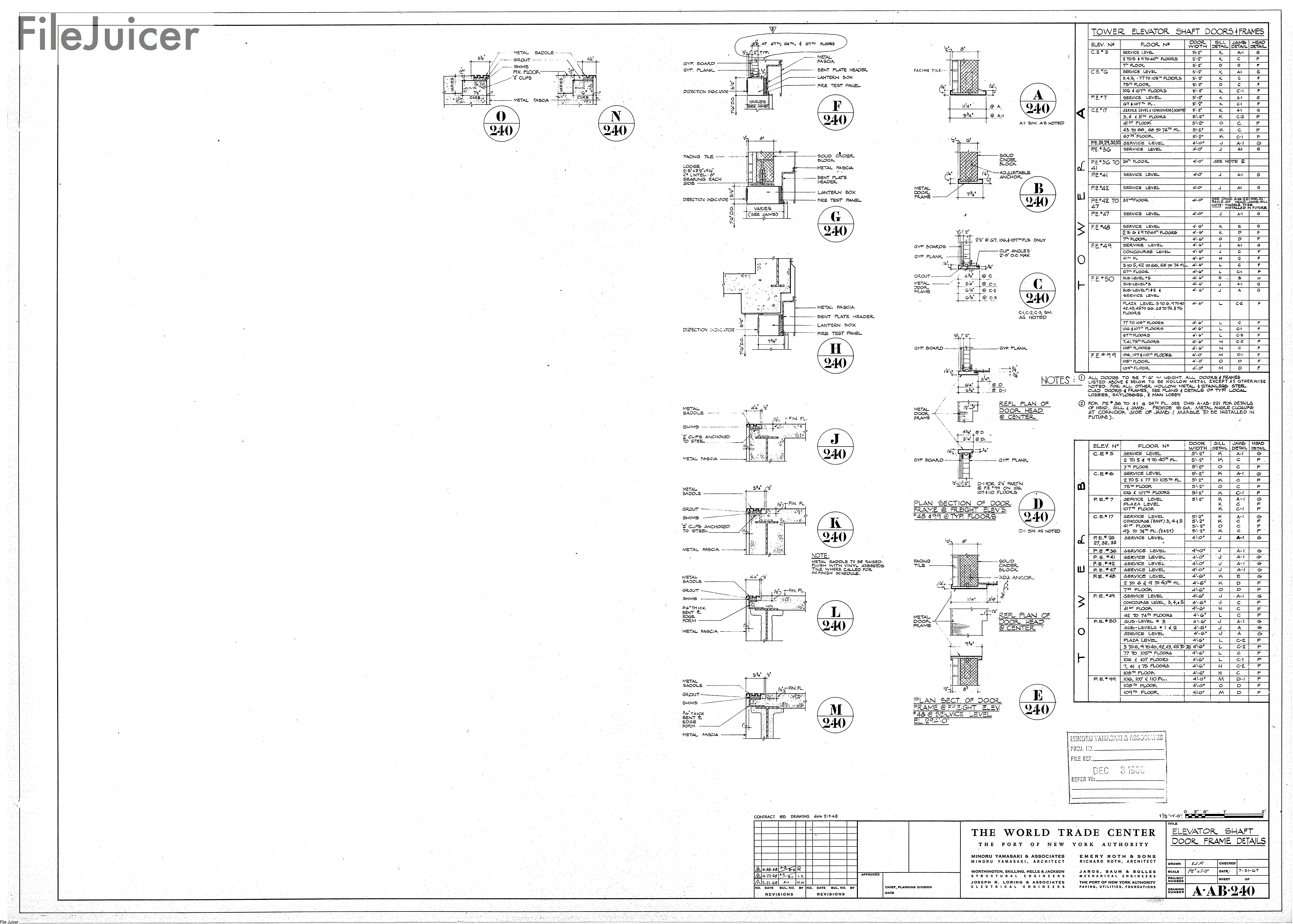
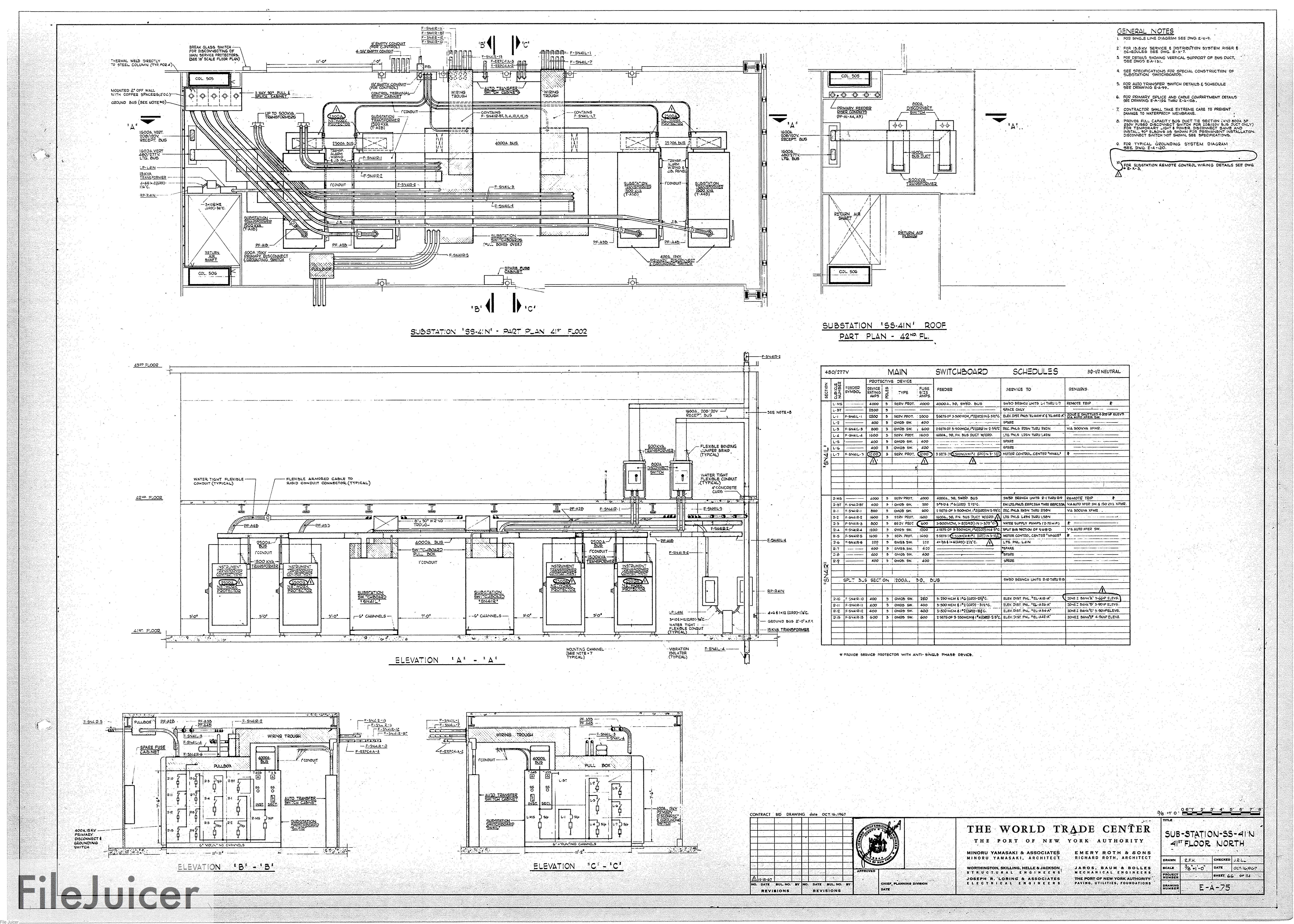
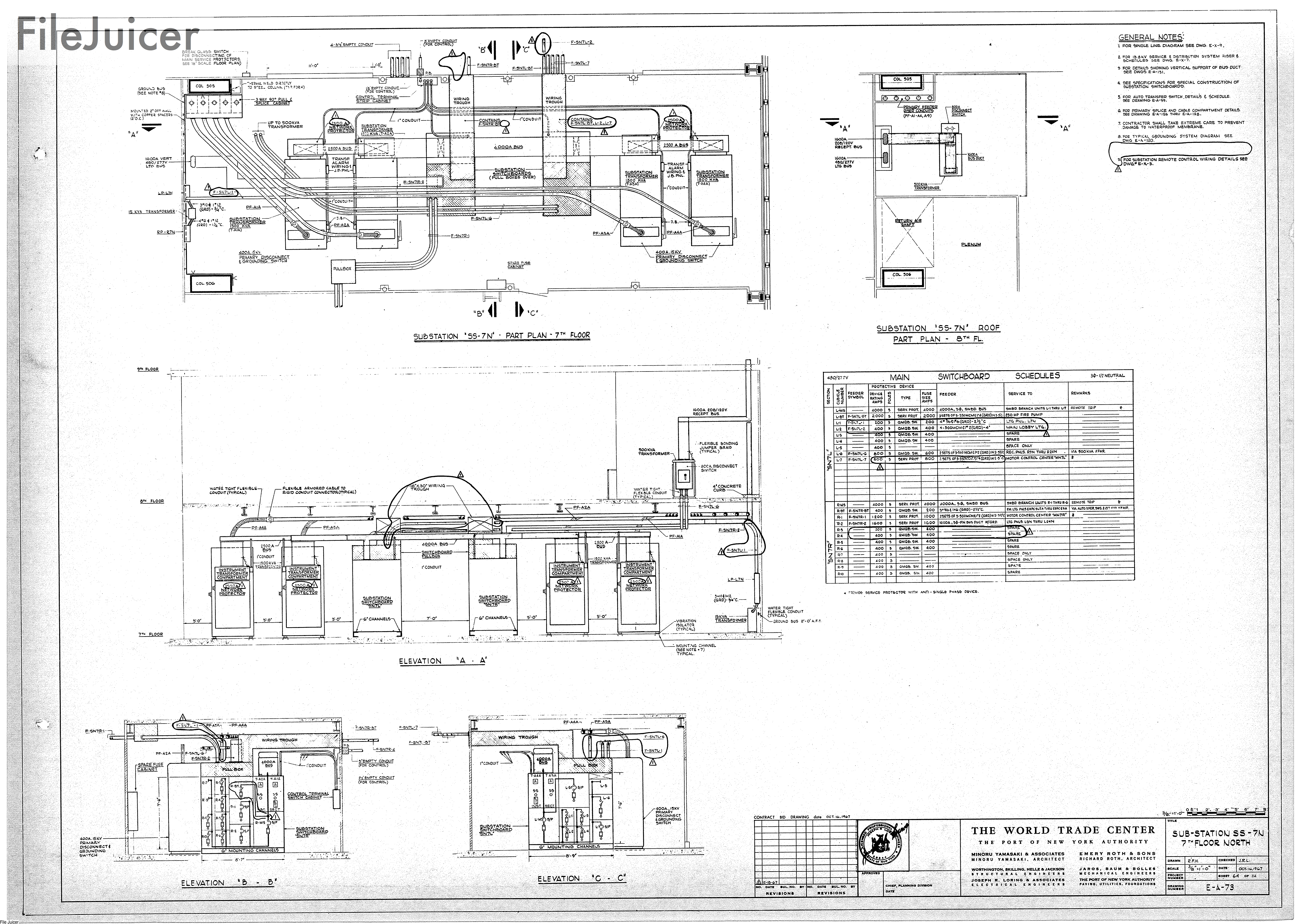
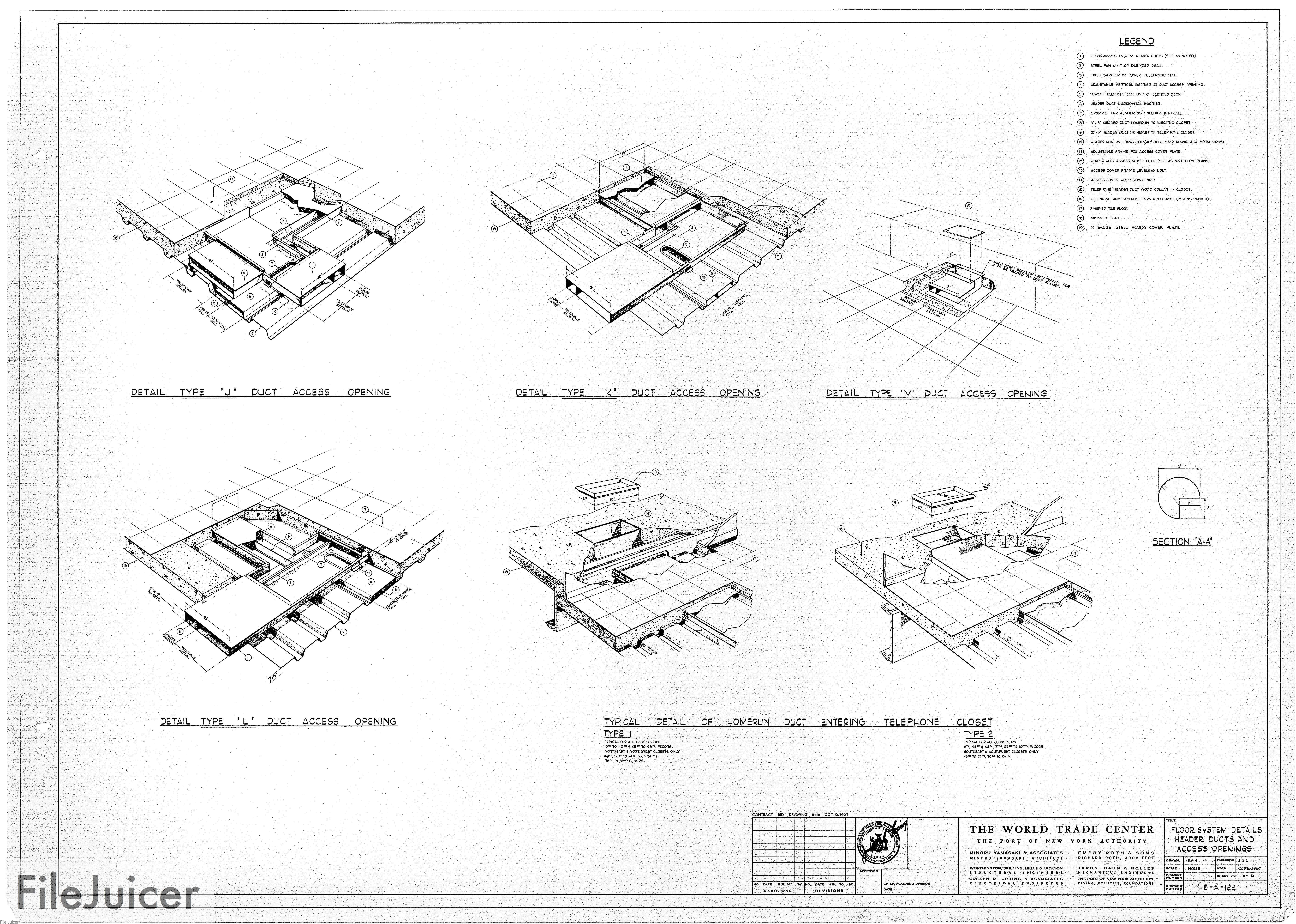
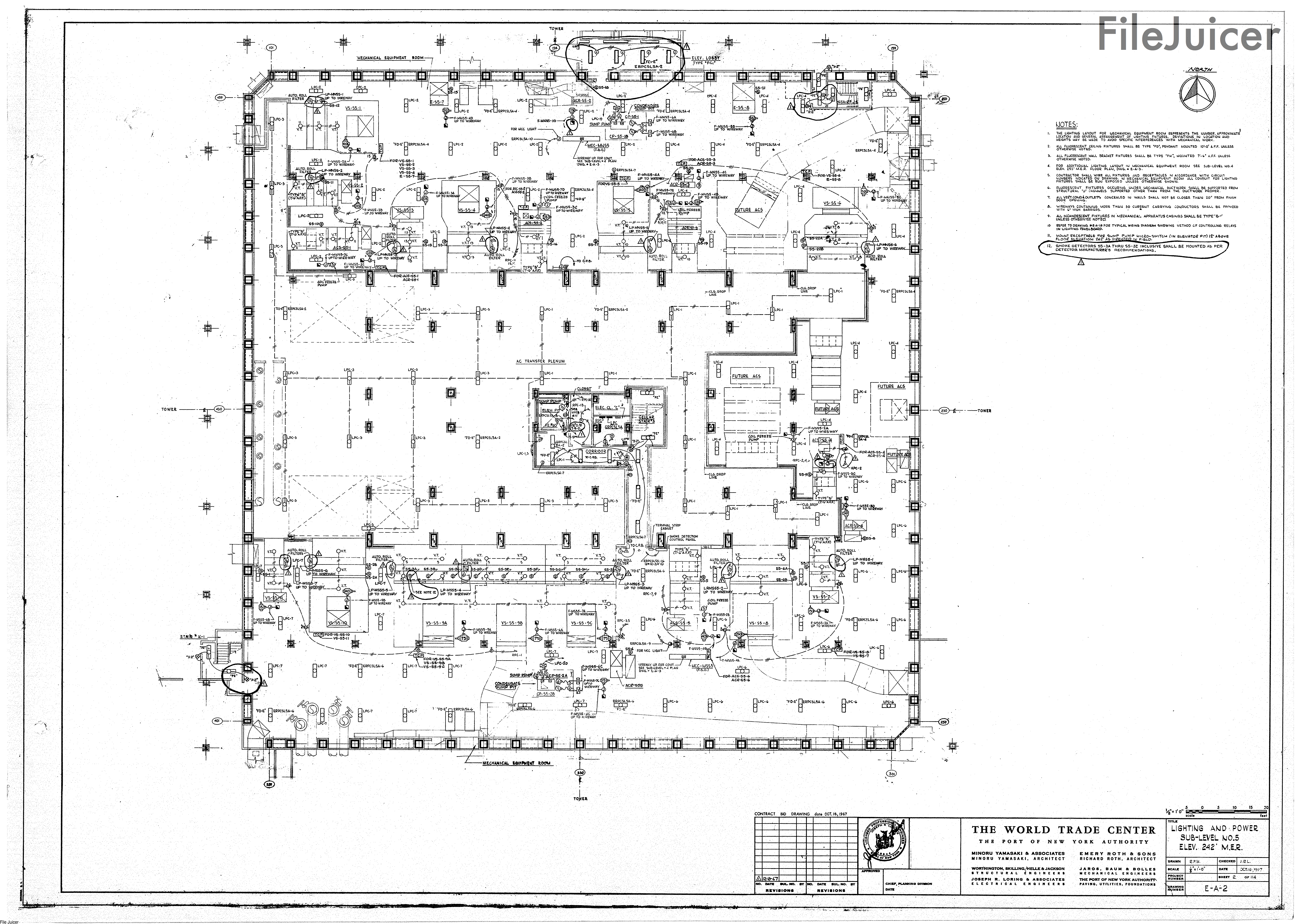
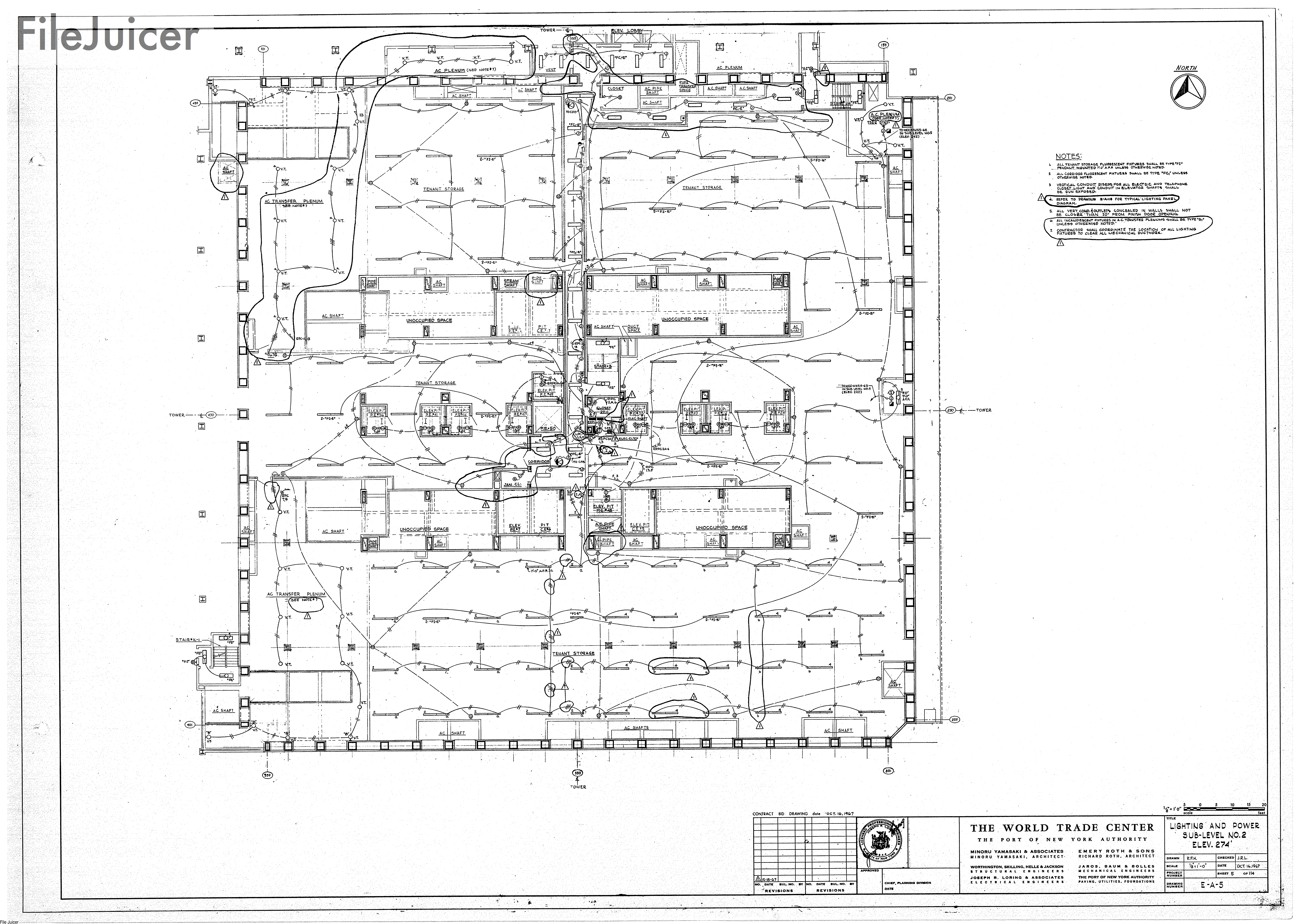
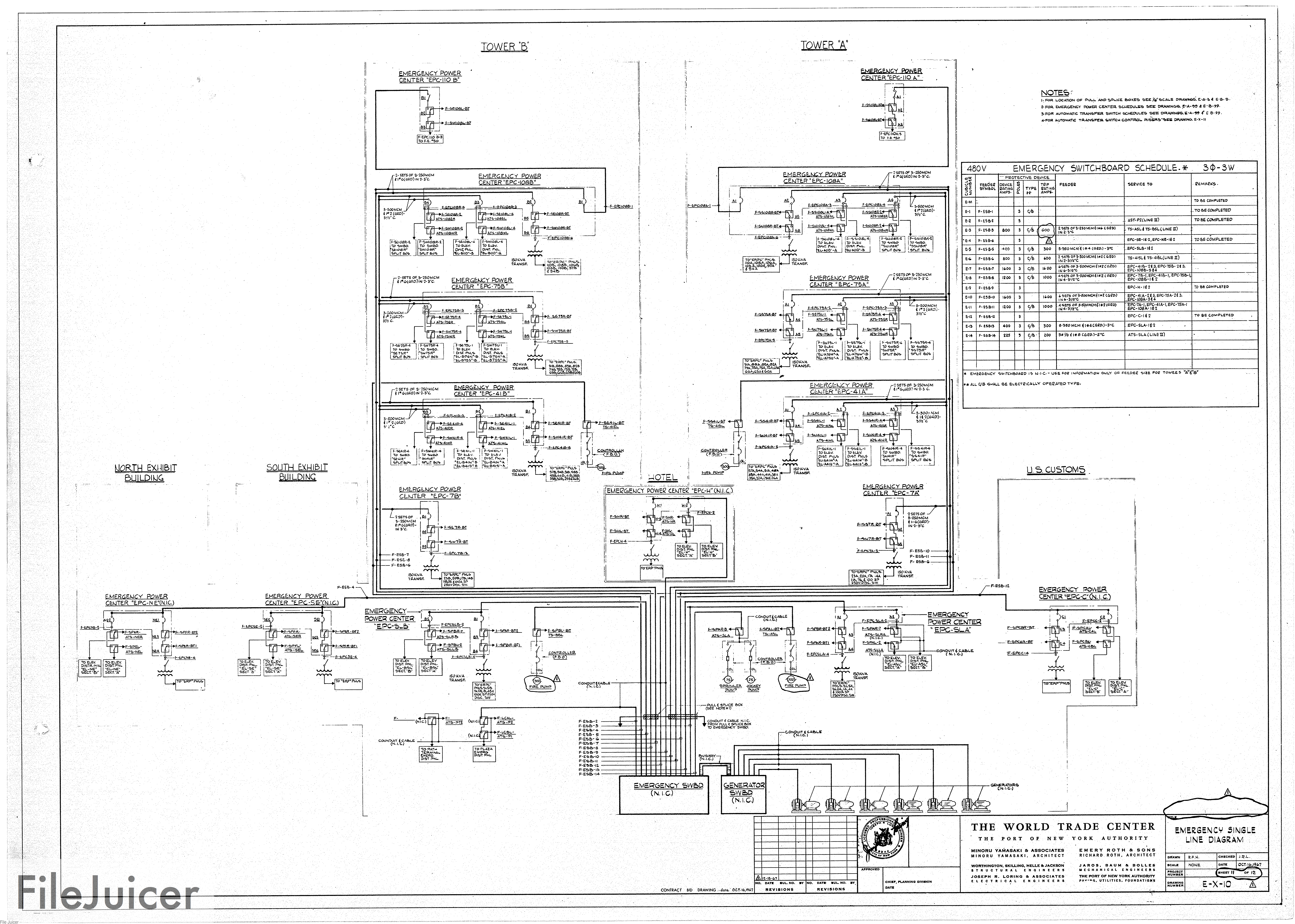
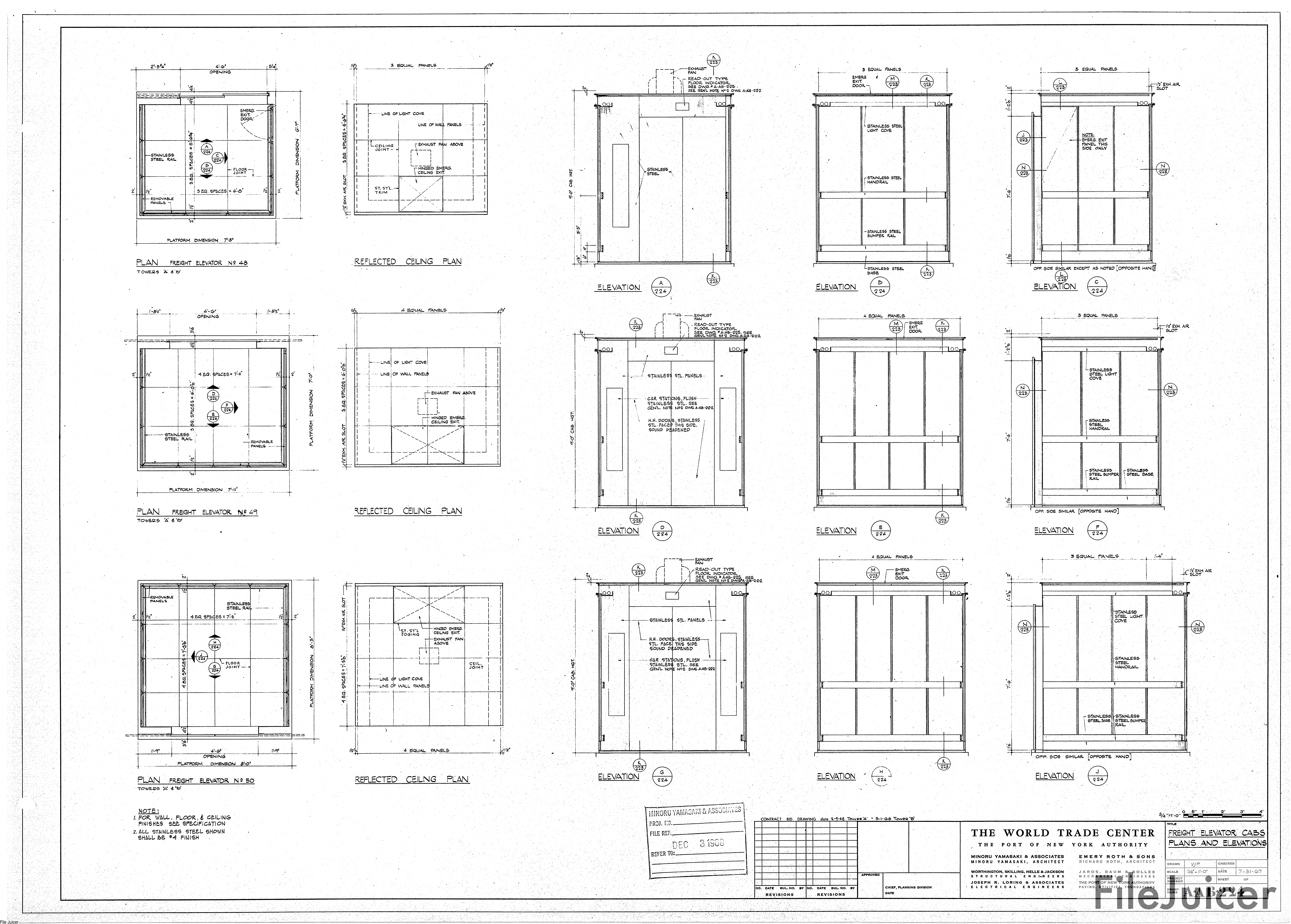
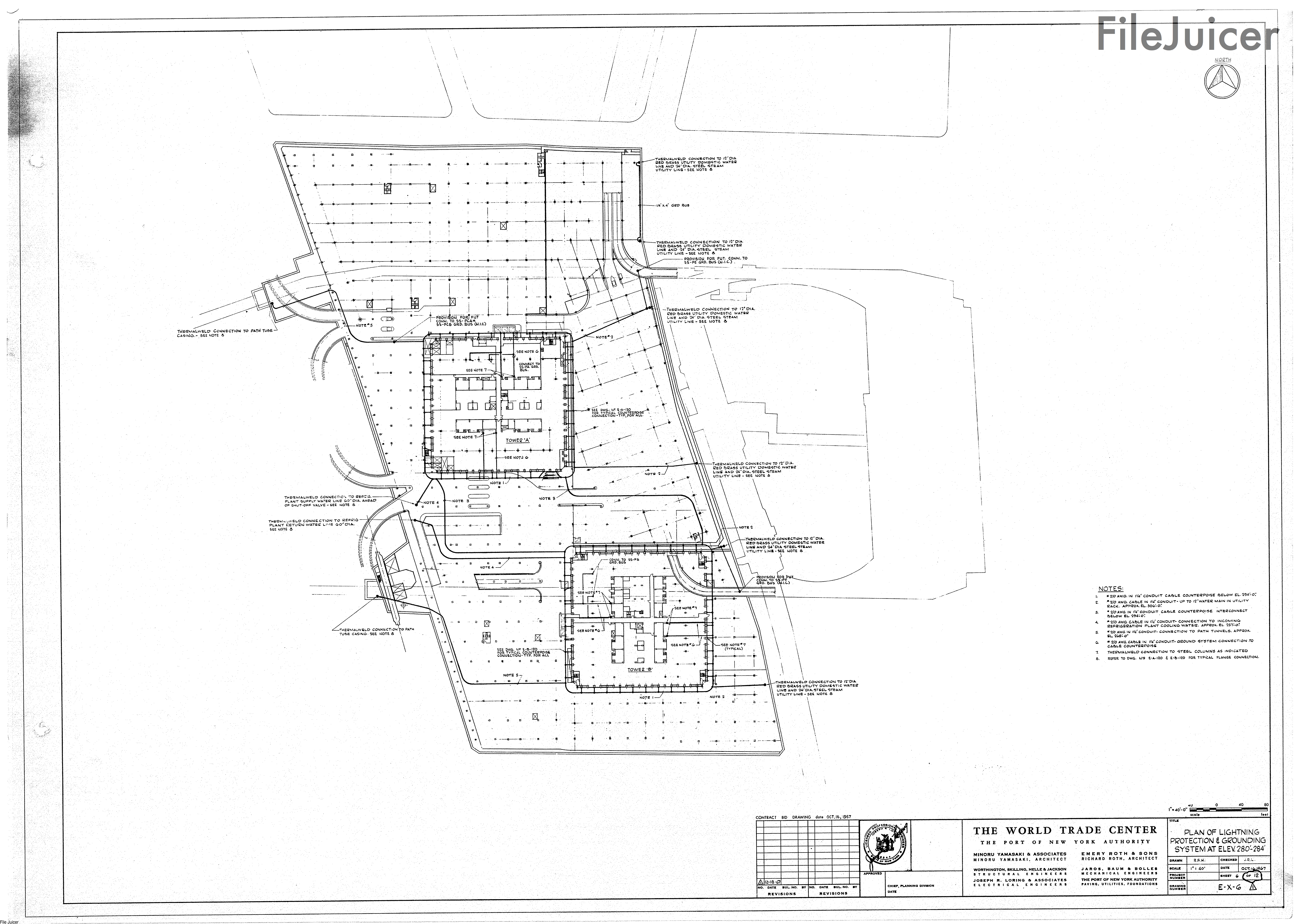
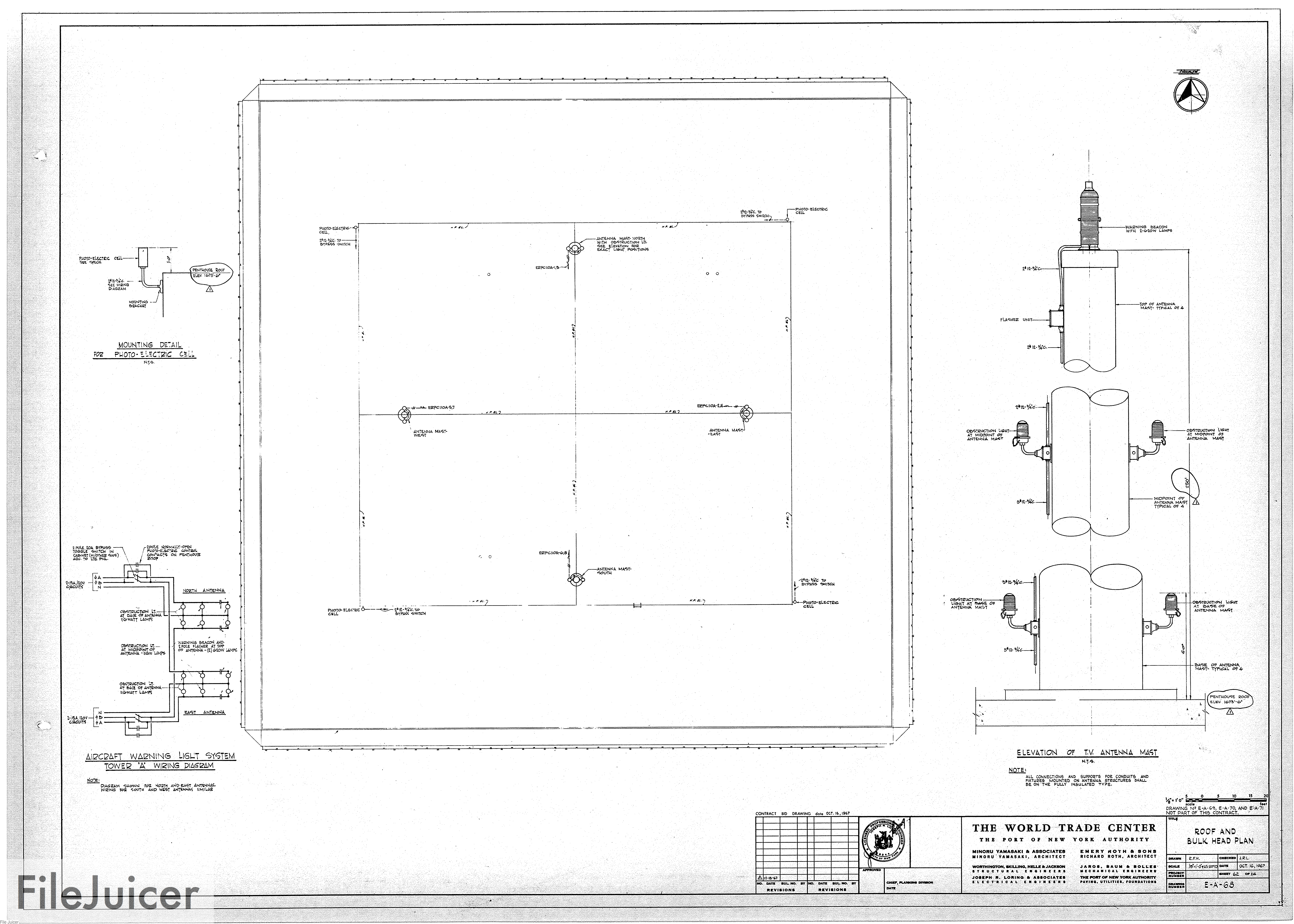
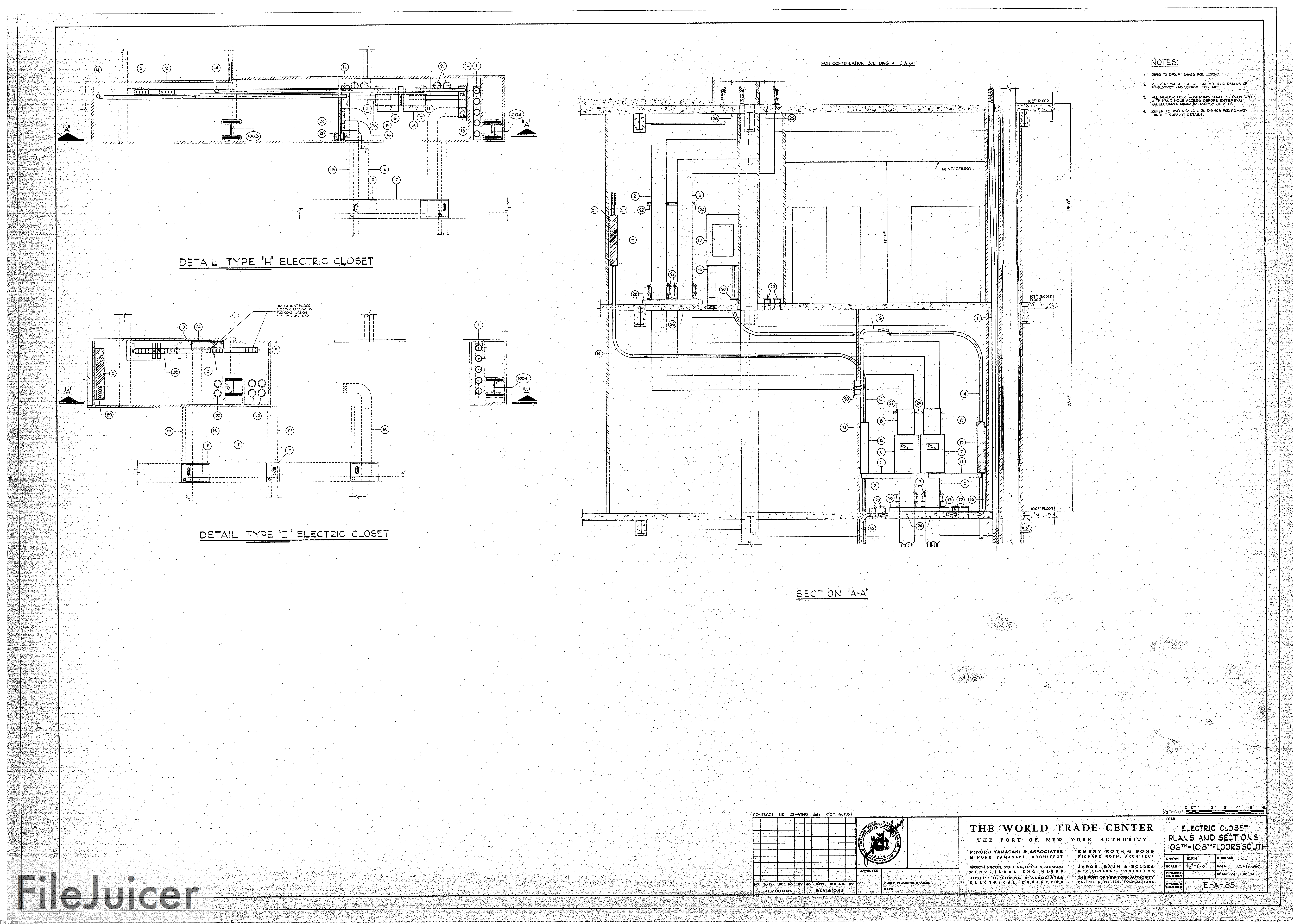
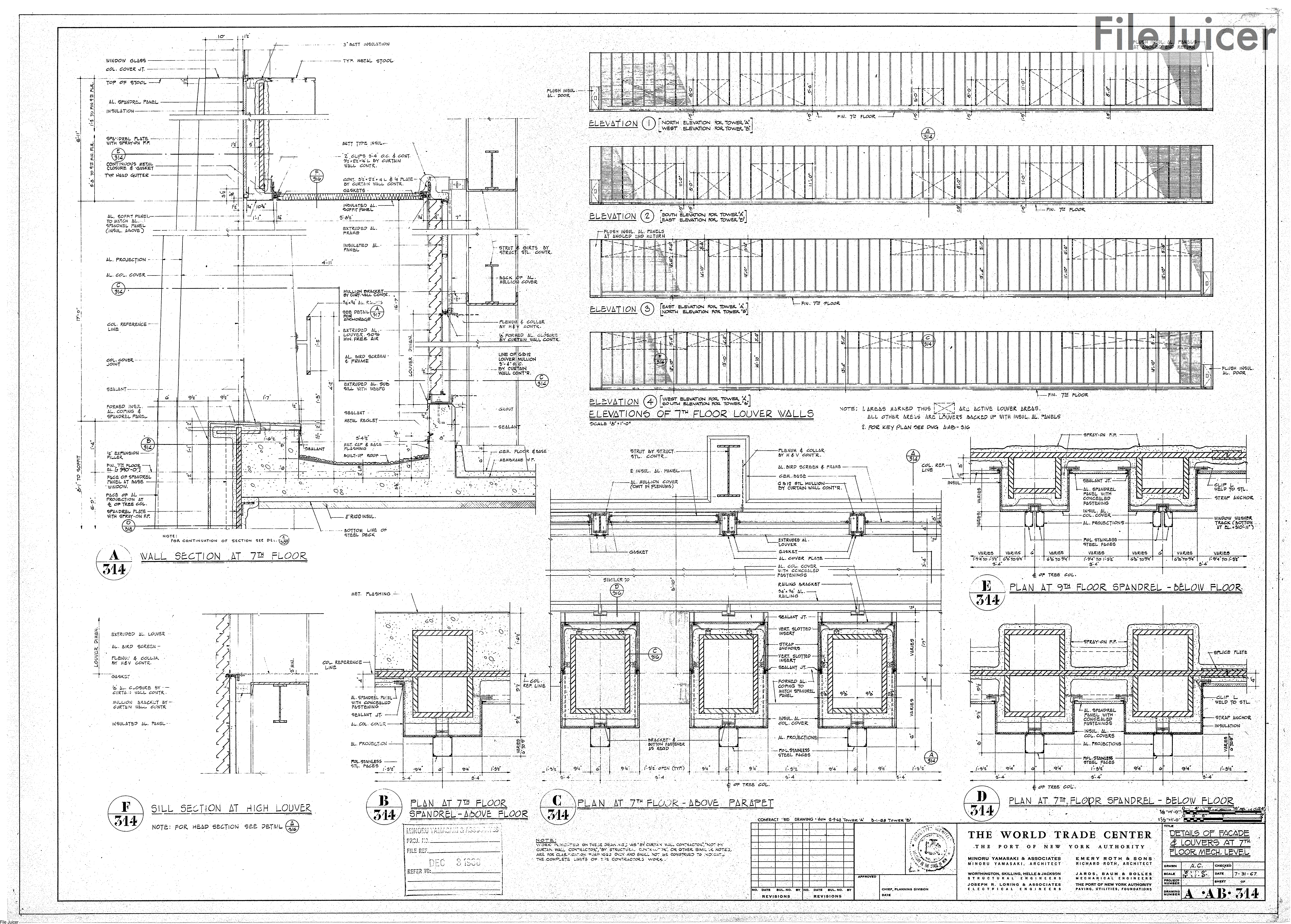
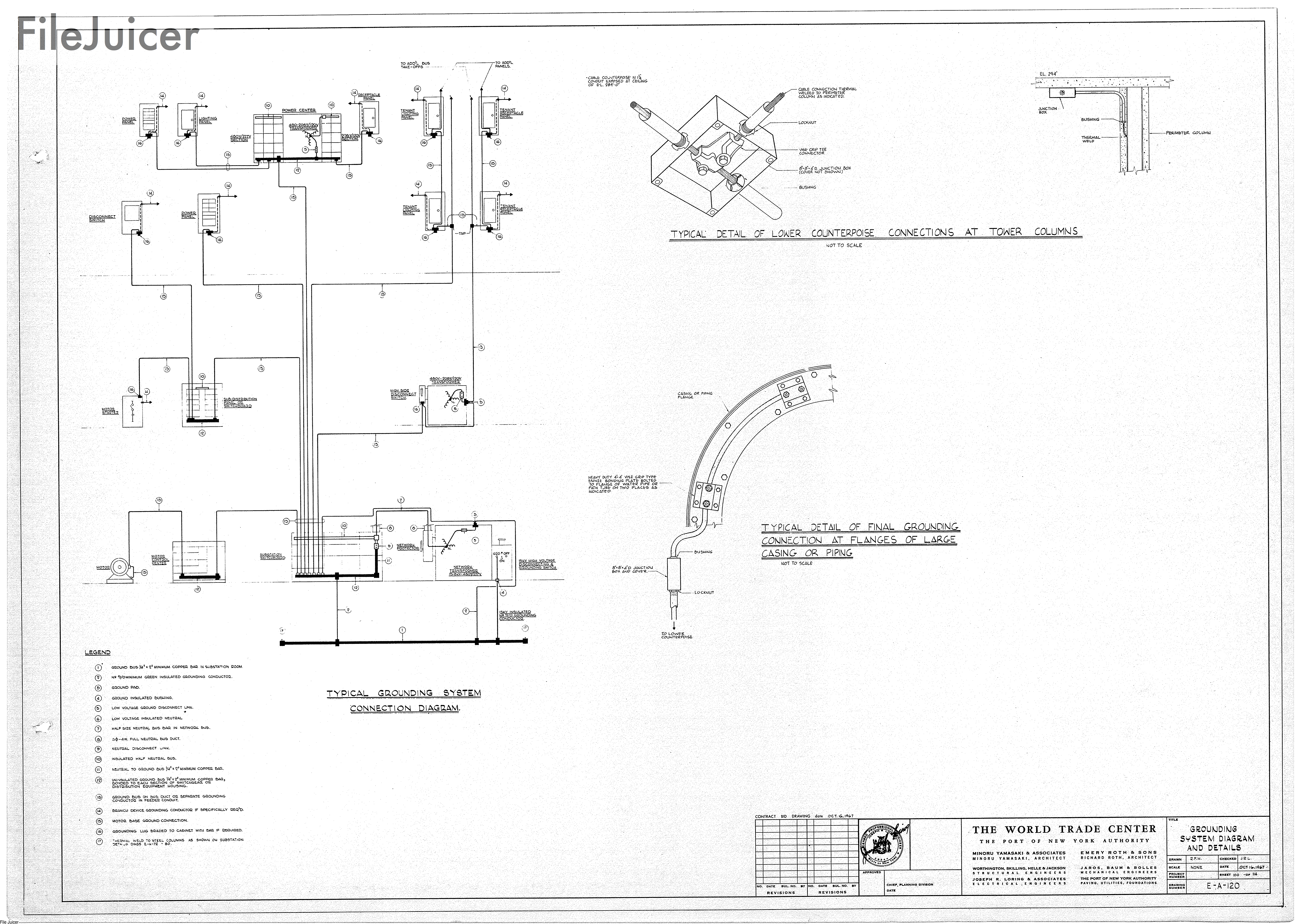
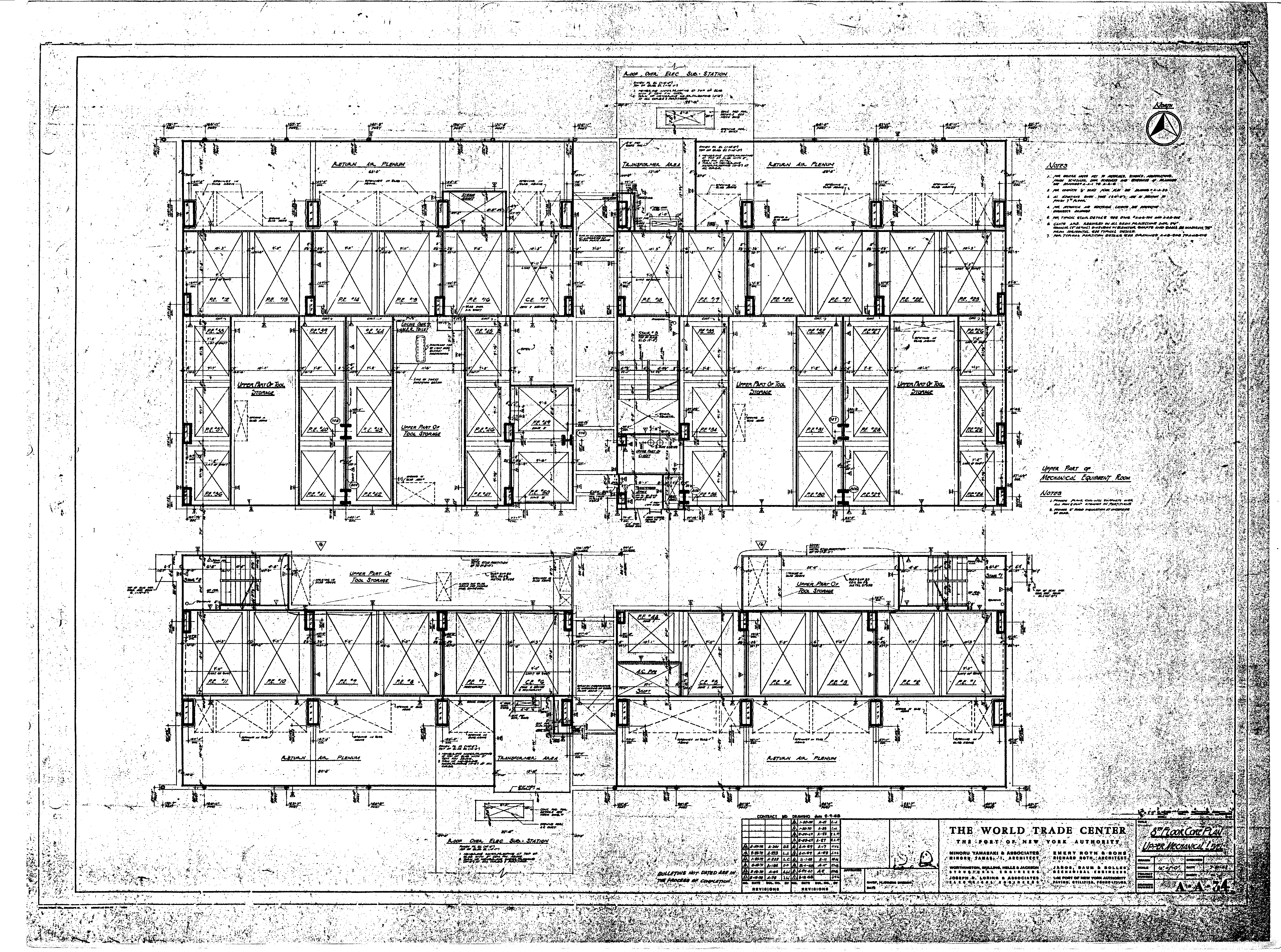
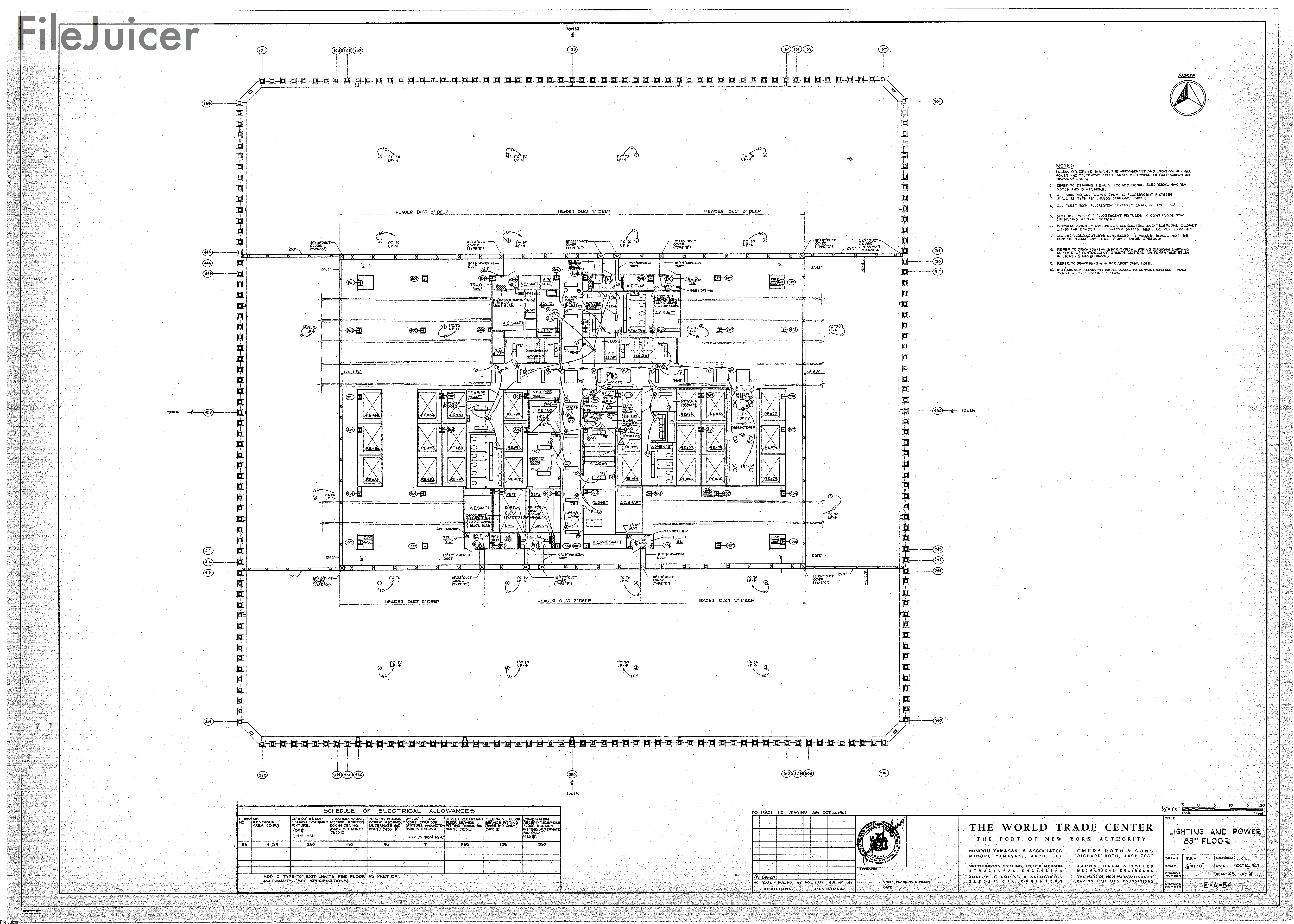
As engineers, we have a legal responsibility to guard the public’s safety.
If you believe in the power of dedicated people and their ability to change the world, then please make a donation right now!
Thank you so much for your continued support and your willingness to stand with us!
From Architects & Engineers for 9/11Truth and filmmaker, Dylan Avery comes this short documentary that is both hauntingly beautiful in its presentation and startlingly grim in its revelations.
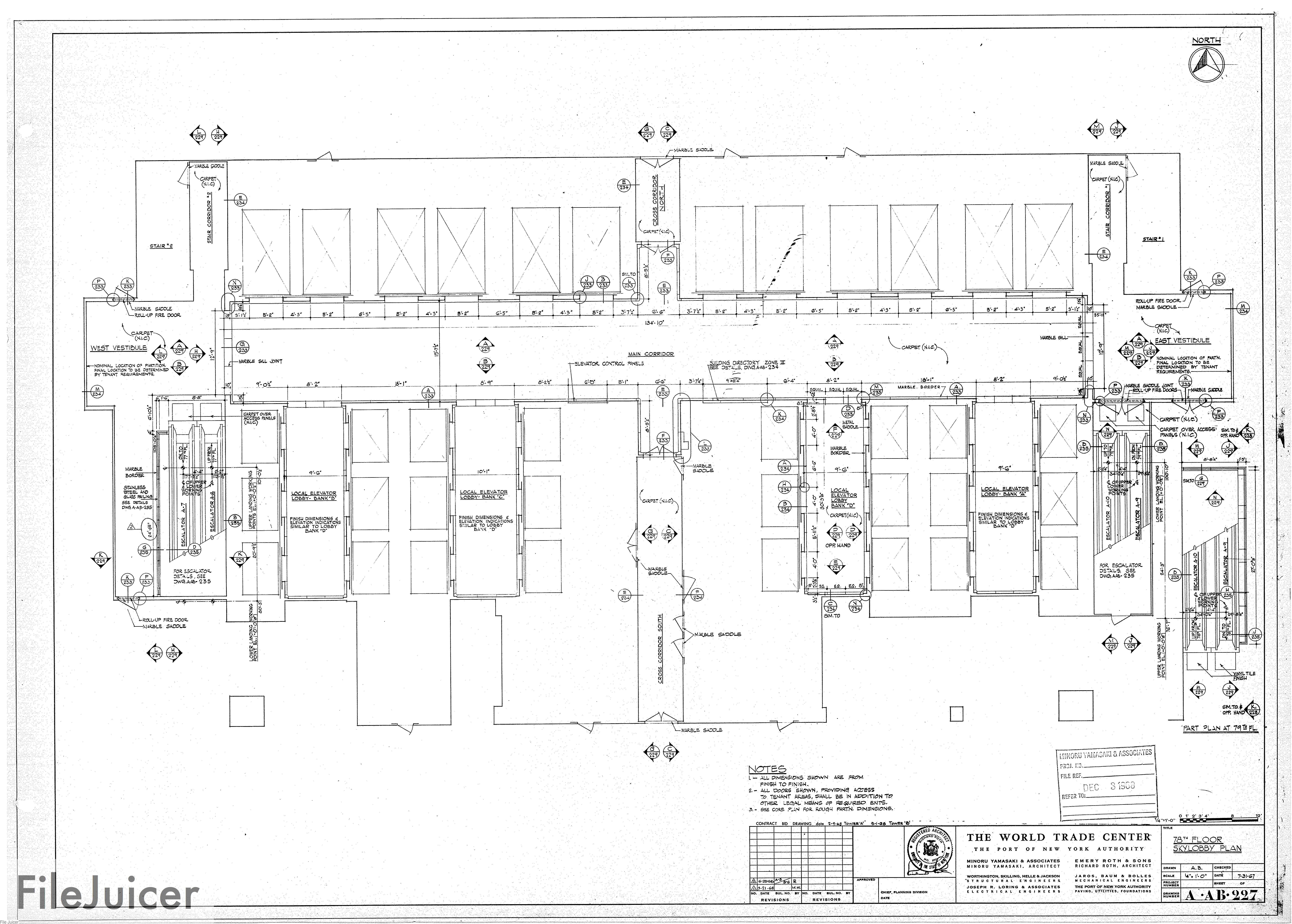
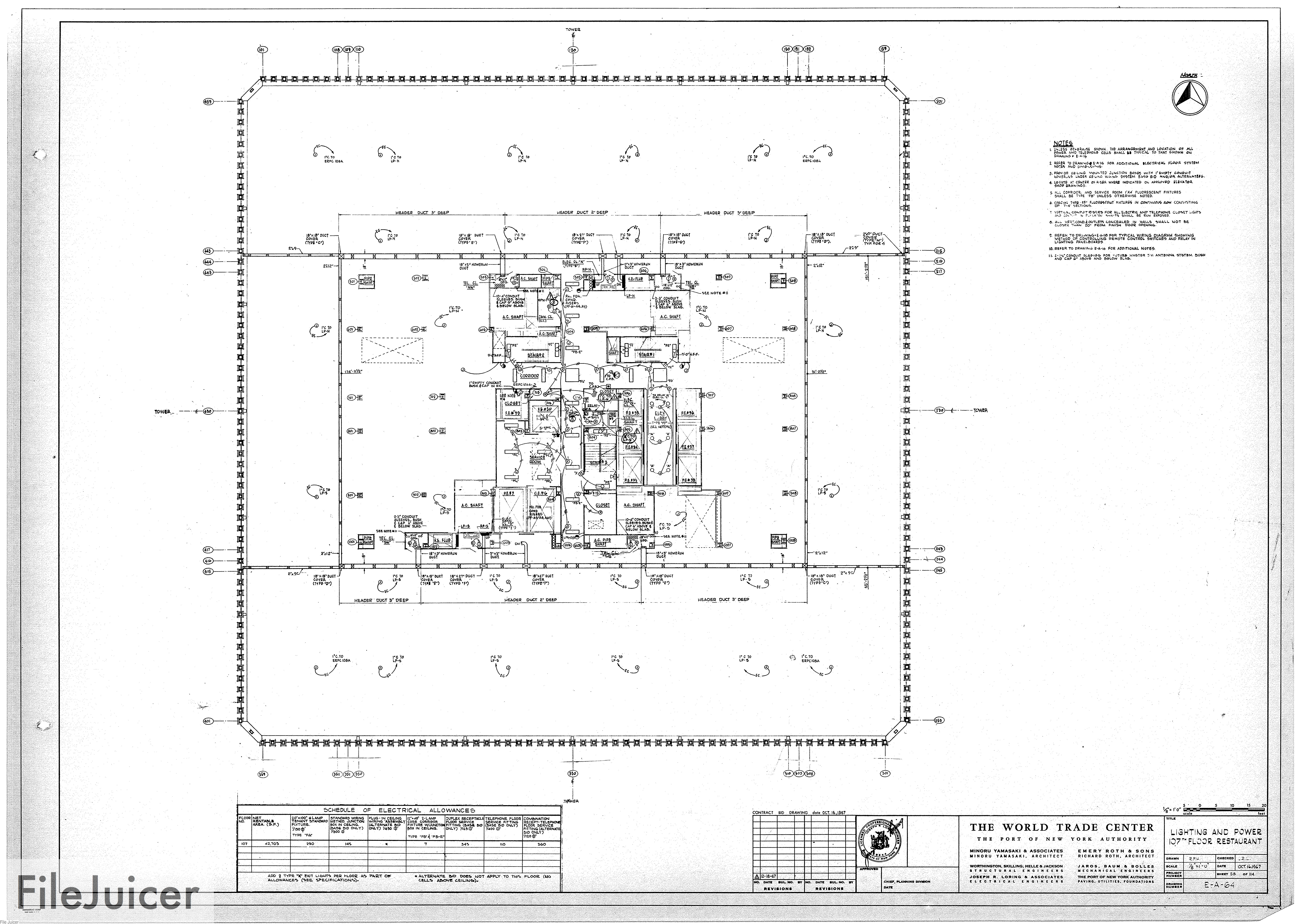
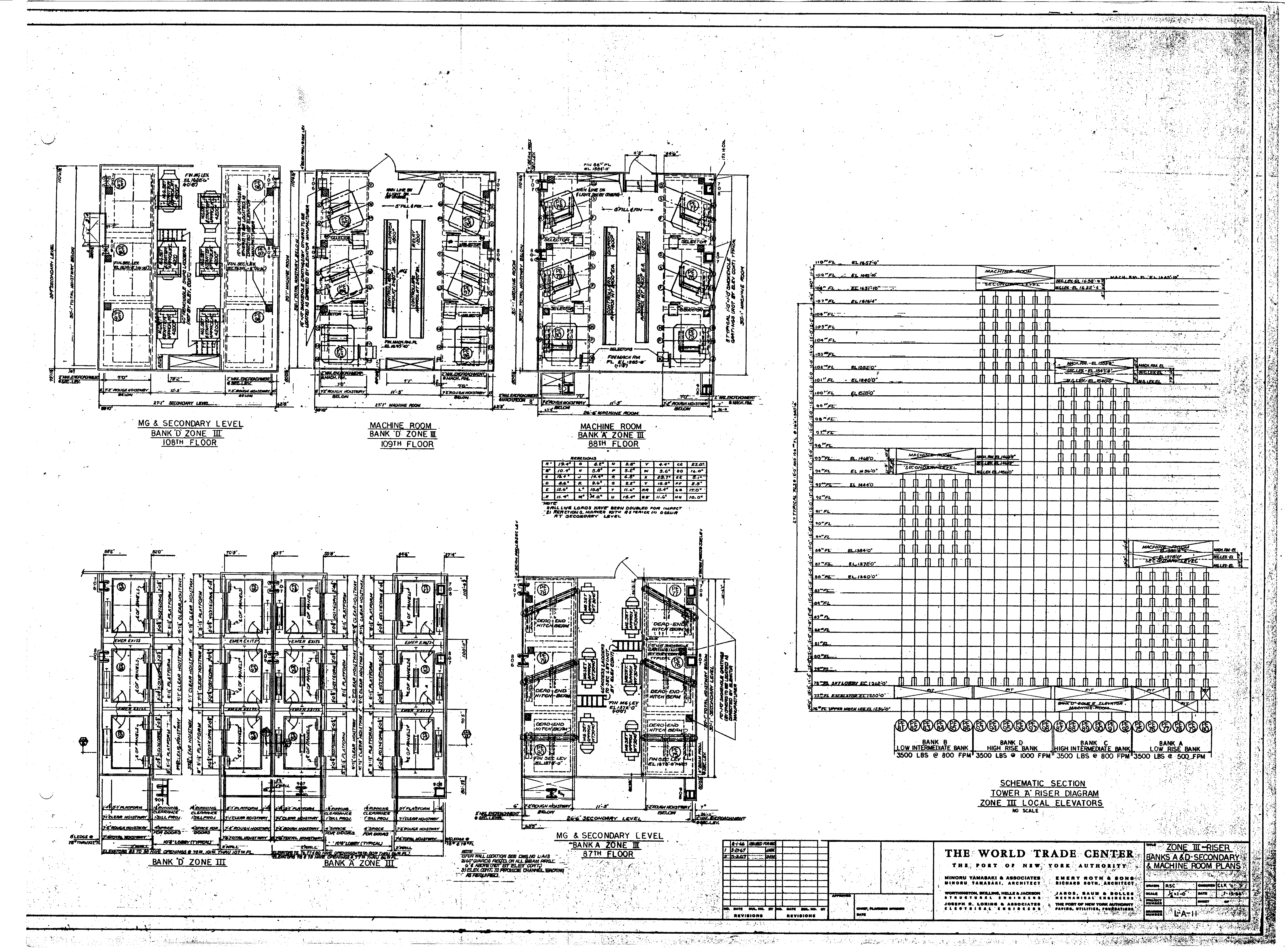
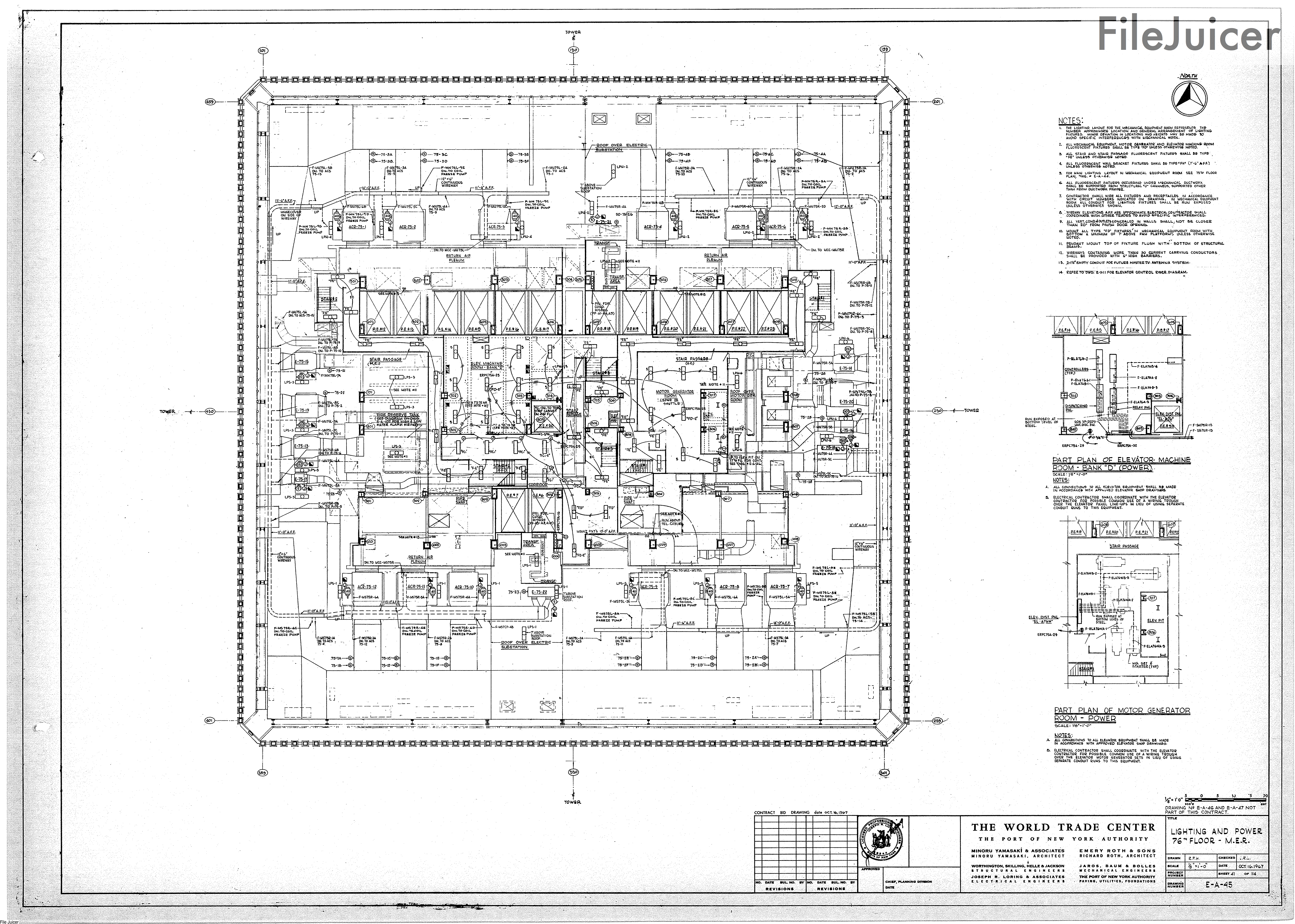
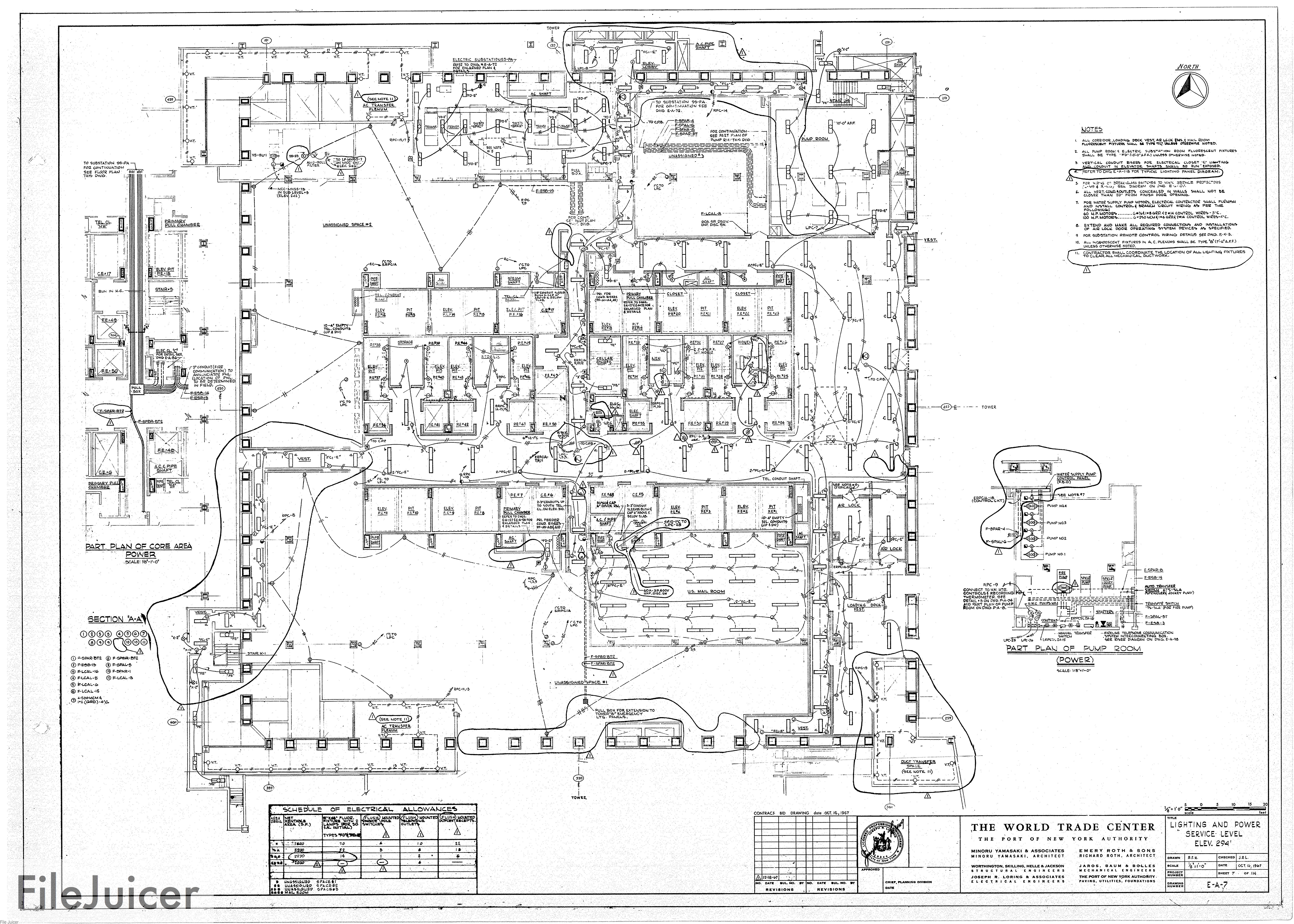
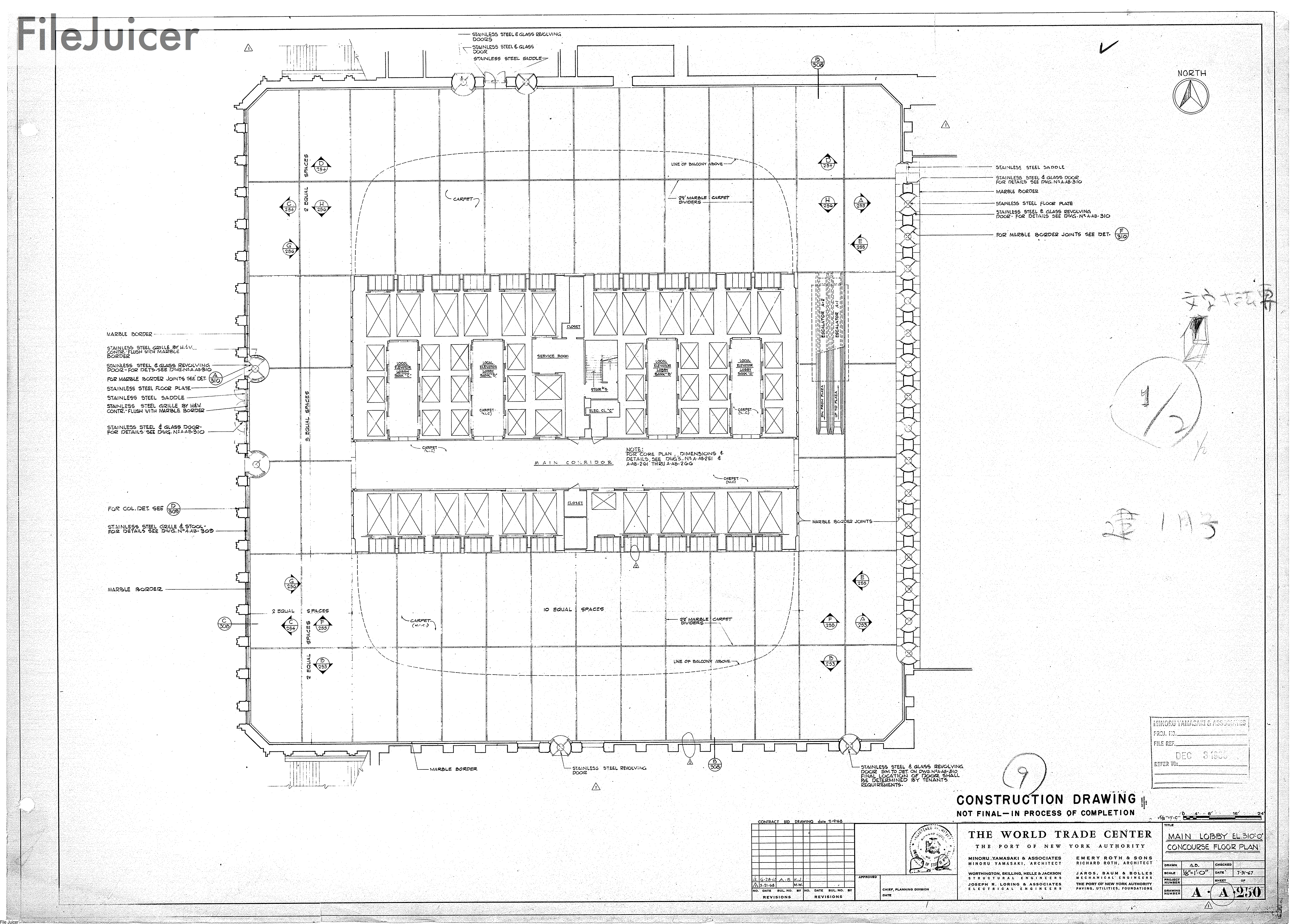
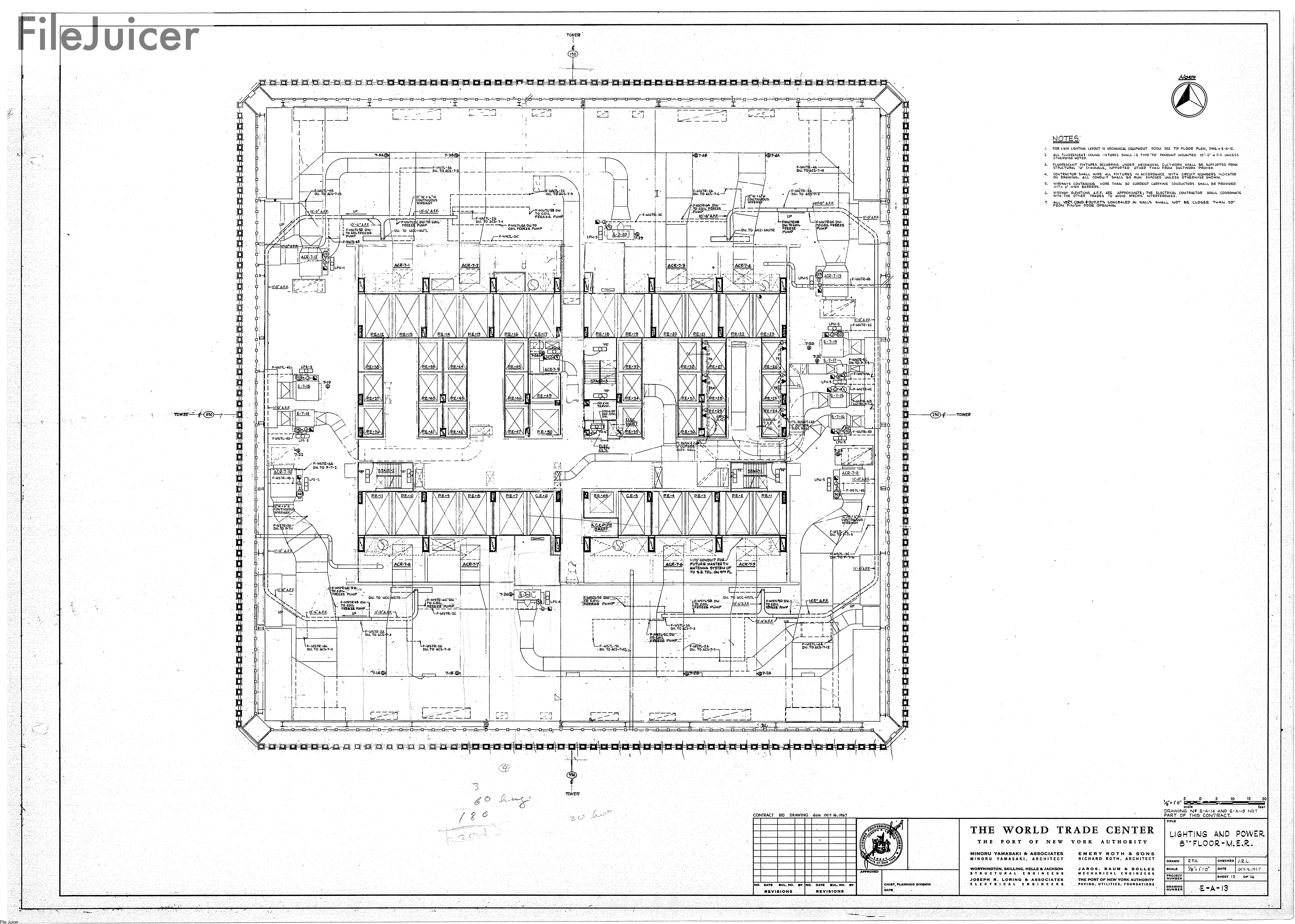
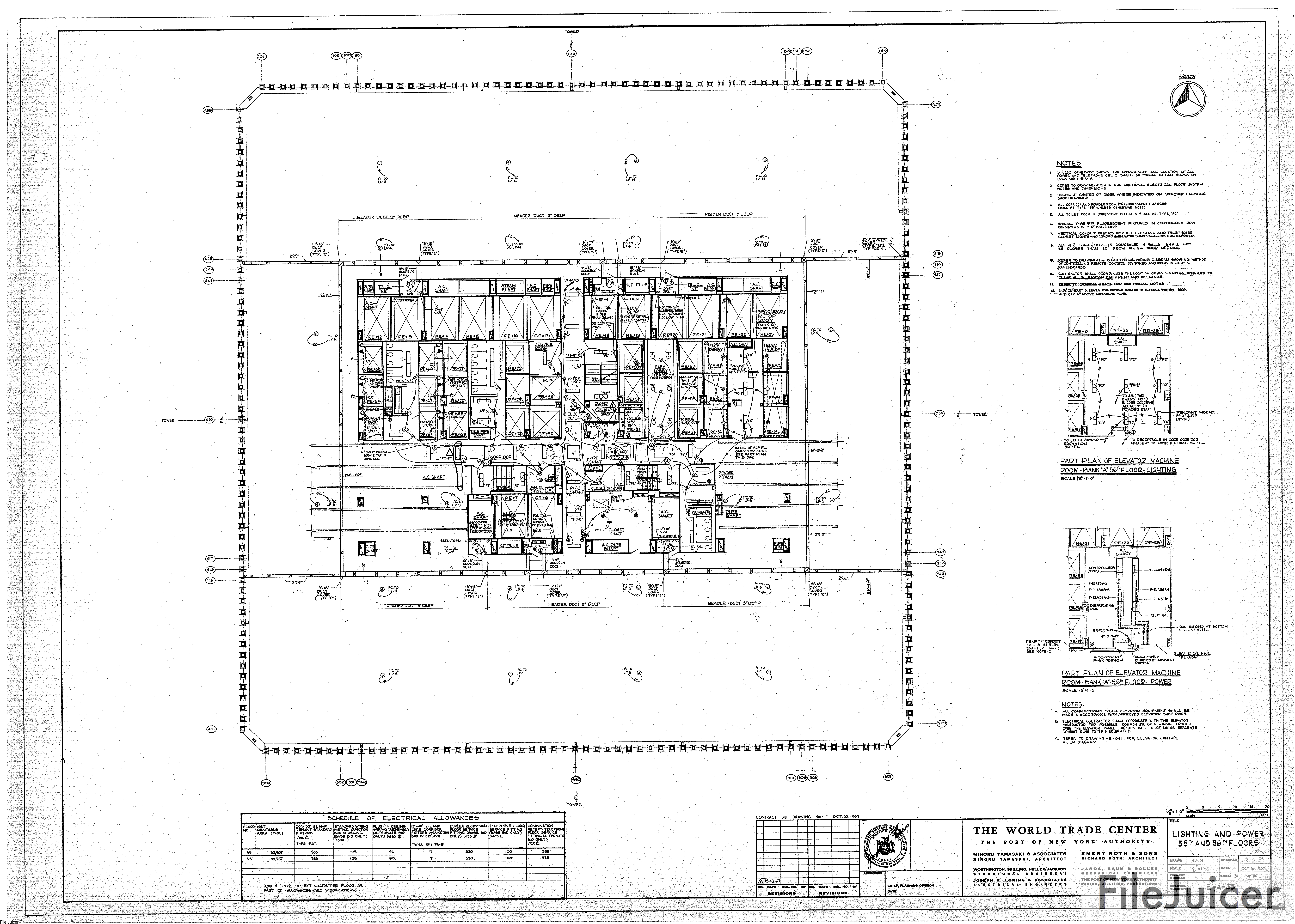
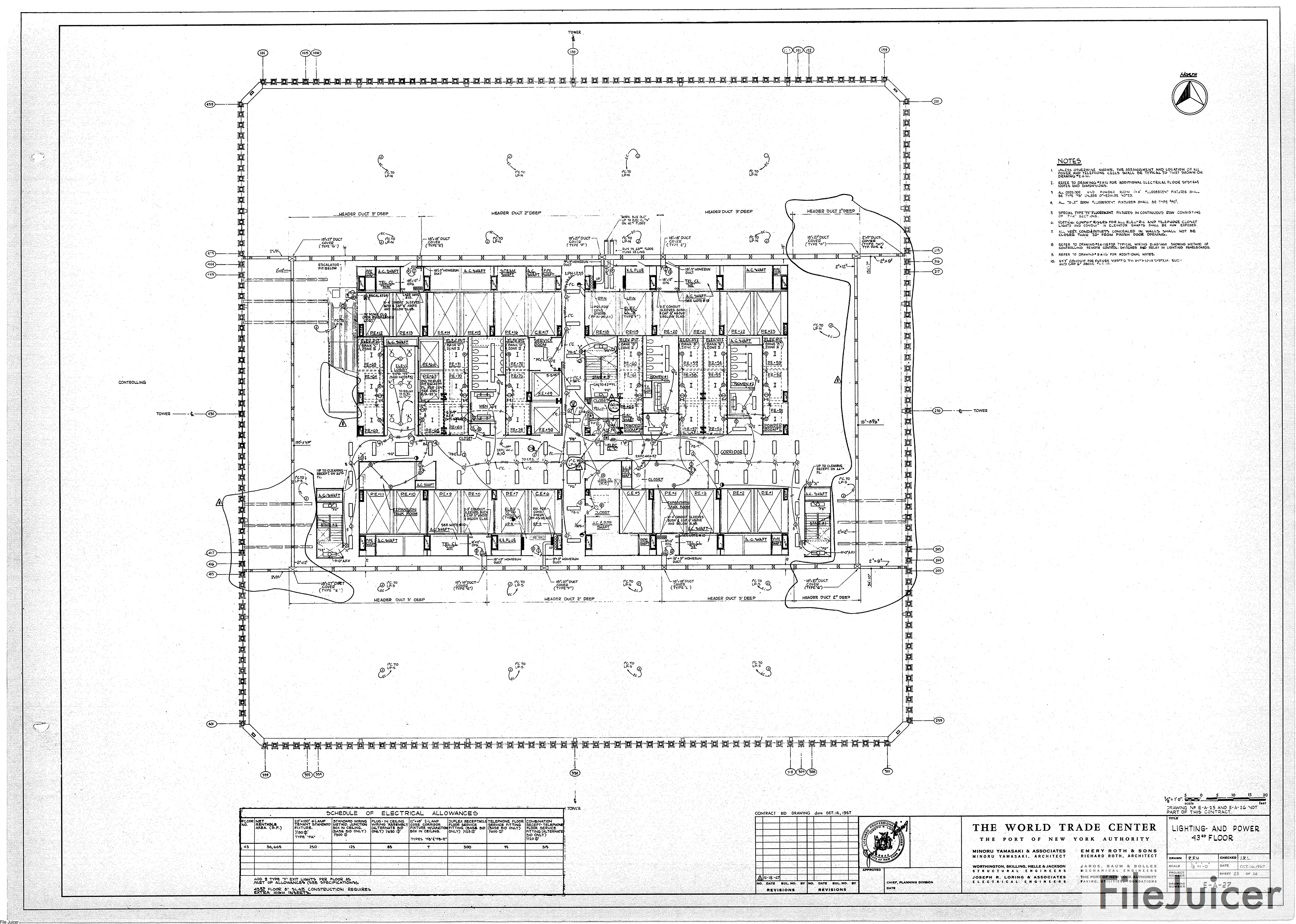
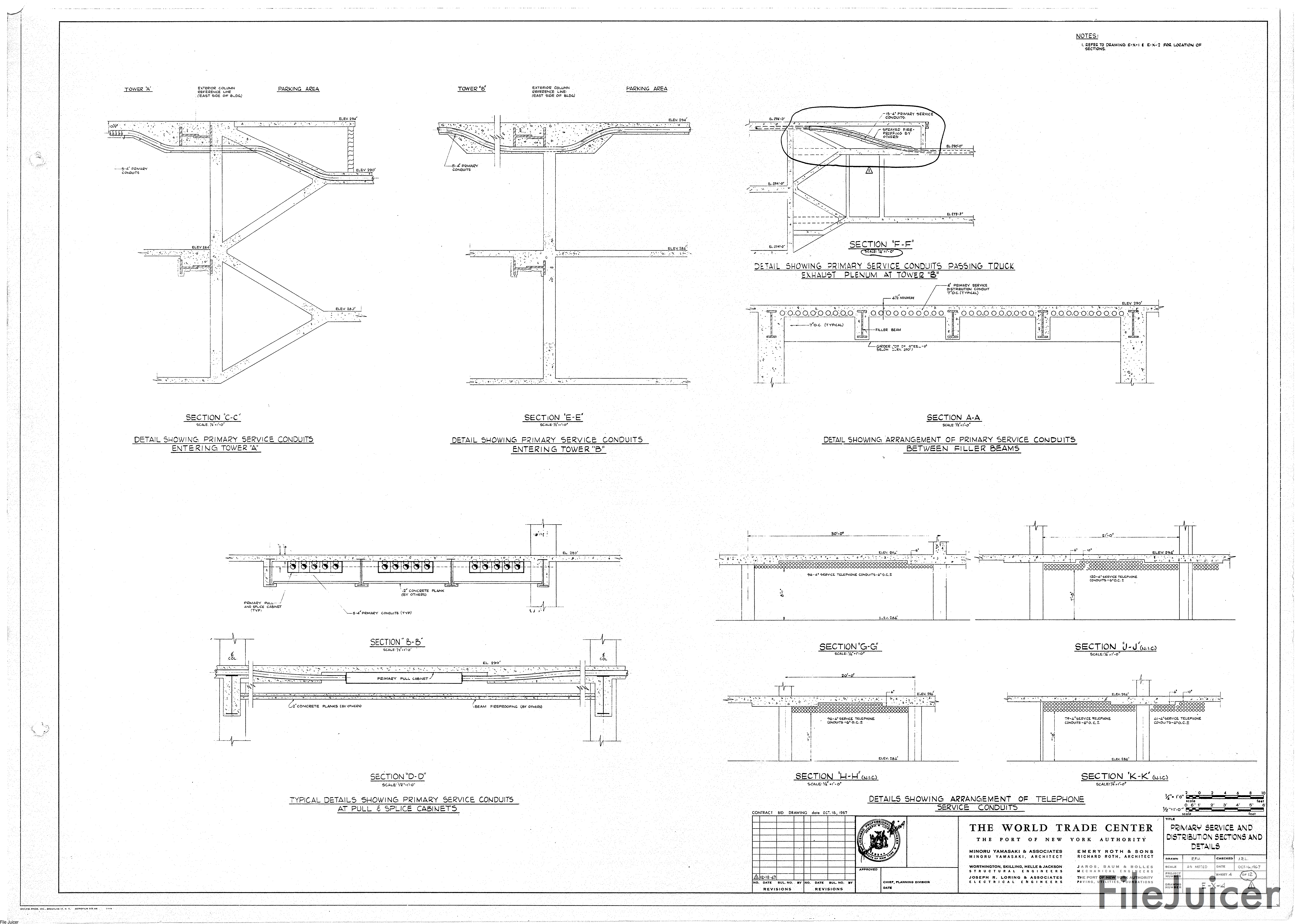
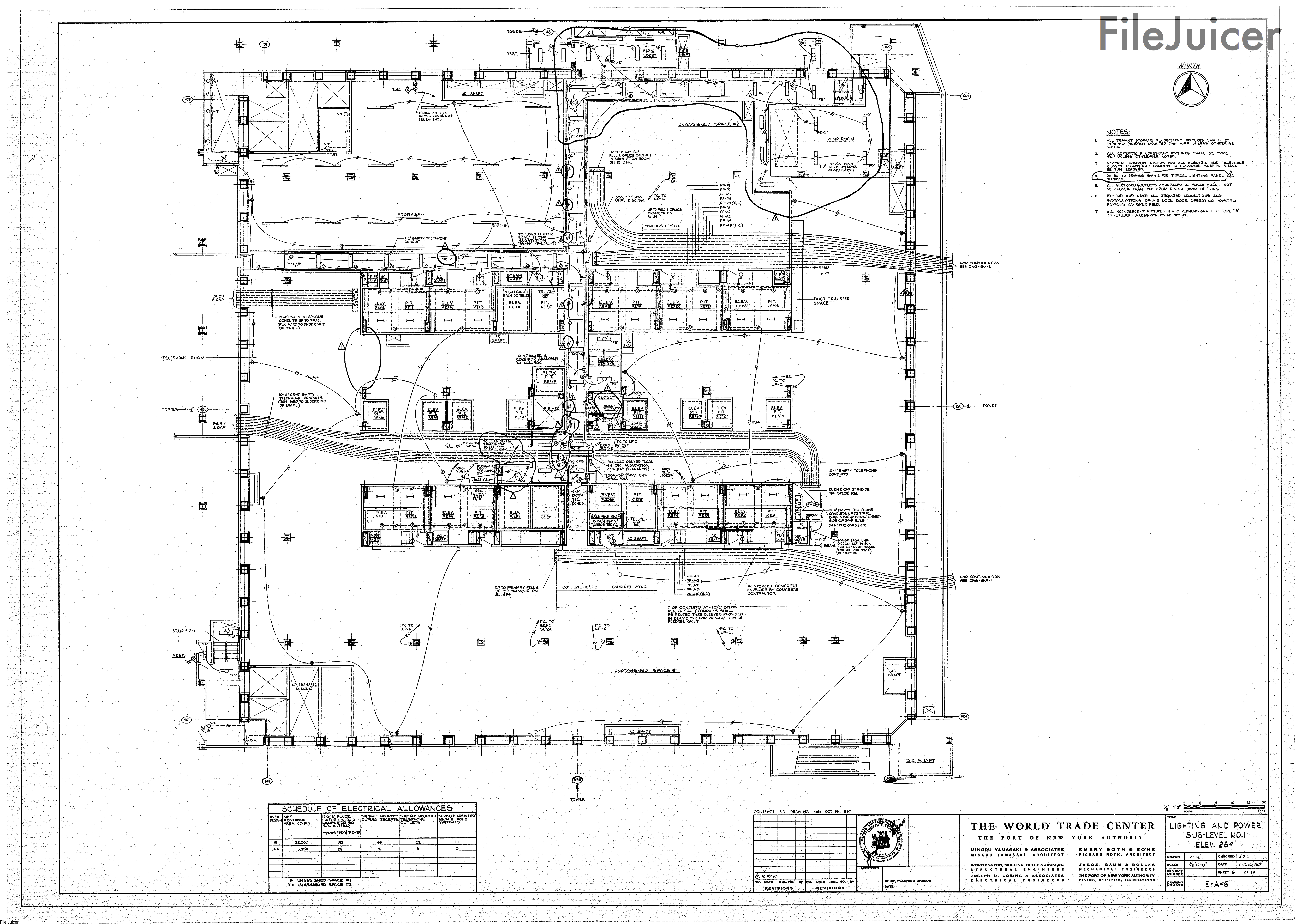
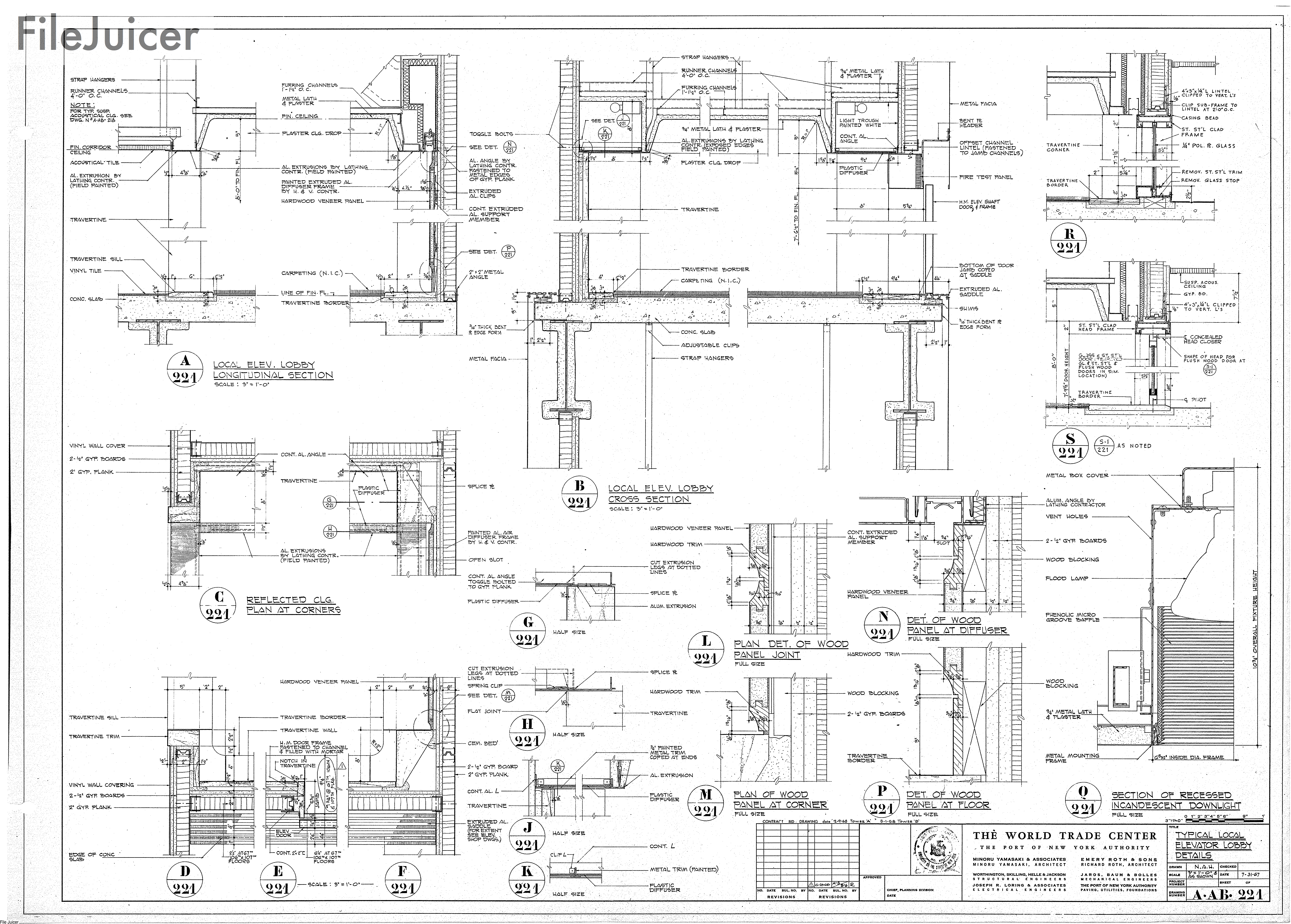
Join civil engineer, Jonathan Cole through an informational odyssey as he revisits the controversy surrounding the impossible destruction of towers 1, 2 and 7 on September 11th 2001, and how his research, along with the research of others, has pulled the rug out from under the conclusions offered by the federal government on why those three buildings ultimately failed.
Through Cole's testimony, and that of mechanical engineer, Tony Szamboti, a dark picture comes into focus that demonstrates that not only is the official story of what killed so many people on America's darkest day provably false but that the federal government actively and willfully turned a blind eye to the observable facts during its unscientific investigation of the building collapses.
In a little over twenty minutes, Thirty Seconds of Silence reveals more about the destruction of the three World Trade Center towers on 9/11 than the media has revealed to the public in the over twenty years since the event took place.
